Type
Bien immobilierTarif
429 000 €Chambres
0Salles de bain
0Vente Bureaux 179 m²
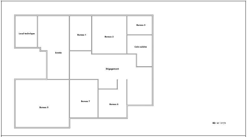
Iad France - Jean Saul (07 56 93 00 86) vous propose : À VENDRE ou A LOUER : À EVRY-COURCOURONNES en plein centre-ville, je vous propose ce plateau de bureaux modulables de 179 m² environ. 2 places de parking en sous-sol sont inclues. Ces bureaux sont au 4ème étage d’un immeuble de standing et sécurisé, qui se trouve à proximité du T ZEN, de la GARE D'EVRY COURCOURONNES, et du centre commercial LE SPOT. DESCRIPTION ACTUELLE : - Un grand open-space de 65 m² environ, idéal pour un plateau de travail collaboratif. - Plusieurs bureaux fermés de 12 à 15 m² environ. - Une salle de réunion de 25 m² environ. - Un espace accueil / salle d’attente de15 m² environ. - Un coin kitchenette + espace détente, Sanitaires privatifs. L'AVIS DU PROFESSIONNEL : En raison de leur configuration et des mètres carrés à disposition, il sera tout à fait possible de créer plusieurs bureaux indépendants soit pour y installer vos différents collaborateurs, et / ou pour les louer à l'unité. Le Rapport locatif est intéressant pour 12 BUREAUX indépendants, sachant que l’immeuble est également proche du Campus universitaire, du TZEN, du CENTRE COMMERCIAL LE SPOT et de la Gare d’Évry-Courcouronnes. Le prix de vente affiché est un prix de vente honoraires inclus. Je suis Disponible 7 / 7 pour vos questions et visites. Information d'affichage énergétique sur le bien associé à cette annonce : DPE NS indice et GES NS indice. La présente annonce immobilière a été rédigée sous la responsabilité éditoriale de M. Jean Saul (ID 86100), Agent Commercial mandataire en immobilier immatriculé au Registre Spécial des Agents Commerciaux (RSAC) du Tribunal de Commerce de Evry sous le numéro 844165571 Retrouvez tous nos biens sur notre site internet. www.iadfrance.fr.
Ce mois
Cette annonce est récente
À proximité
Recherche des commodités à proximité...
Détails de l'annonce
Localisation
Ville
Évry-Courcouronnes
Pays
FR
Surfaces / Pièces / Composition
Nombre d’étages
Chauffage et diagnostics
Diagnostic de performance énergétique (DPE)
a
b
c
d
e
f
g
Indice d'émission de gaz à effet de serre (GES)
a
b
c
d
e
f
g
