Type
Bien immobilierTarif
84 700 €Chambres
1Salles de bain
0Vente Appartement 2 pièces
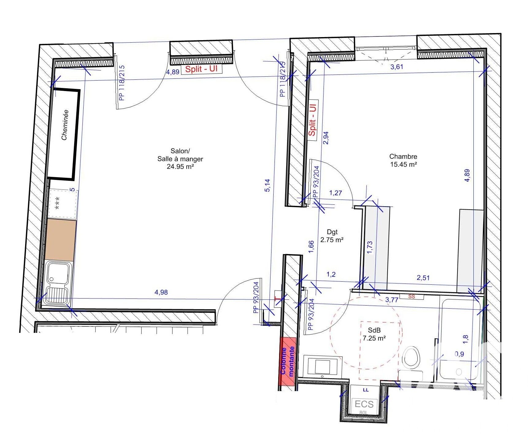
Iad France - Géraldine Nouri vous propose : T2 avec jardin au cOEur de Négrepelisse – Vente en plateau avec fort potentiel et possibilité de projet clé en main Au cOEur du charmant village de Nègrepelisse, à seulement quelques minutes de Montauban et avec un accès rapide à l’autoroute, découvrez ce T2 en rez-de-jardin au sein d’une maison de caractère en cours de rénovation complète. Situé à deux pas de la place du village, des commerces, écoles et services, ce bien offre un cadre de vie recherché entre vie de village et proximité immédiate de Montauban. Un appartement avec cachet et extérieur Ce futur appartement d’environ 50 m² habitables, situé en rez-de-chaussée et accessible PMR, bénéficie d’une belle luminosité et d’une hauteur sous plafond de 2,80 m, apportant volume et confort. Le charme de l’ancien est conservé avec parquet bois massif et cheminée d’époque, offrant un mélange réussi entre authenticité et rénovation contemporaine. Agencement prévu : •pièce de vie avec cuisine de 24,9 m² •chambre de 15,4 m² •salle d’eau avec douche et WC de 7,2 m² •dégagement de 2,7 m² L’appartement s’ouvre sur un agréable jardin privatif d’environ 70 m², un véritable privilège en plein centre du village. Une réhabilitation complète de la maison L’immeuble fait l’objet d’une rénovation globale, incluant notamment : •révision de la charpente et de la toiture •démolition et petite maçonnerie •création des parties communes et cloisons séparatives •renfort des planchers et escalier •menuiseries extérieures •séparation des lots •passage des réseaux (VMC, chauffage, électricité, eau potable, évacuation) Tout le gros OEuvre est entièrement pris en charge, garantissant un projet sécurisé. Les avantages d’un achat en plateau Ce bien est proposé en plateau, offrant plusieurs avantages : •frais de notaire réduits •sécurité financière : paiement uniquement sur du concret, sans appel de fonds comme dans le neuf sur plan •personnalisation possible de l’aménagement intérieur •création de valeur après travaux en comparaison avec l’achat d’un bien neuf immédiatement •solution idéale pour investisseur (déficit foncier et rentabilité brute entre 5 et 6%) ou pour une résidence principale •possibilité de gérer soi-même le second OEuvre ou faire appel au maître d’OEuvre Une enveloppe travaux estimative de 32 200 € TTC permet la réalisation complète de l’aménagement intérieur et un accompagnement clé en mains comprenant : •isolation et plâtrerie •électricité et plomberie •chauffage par pompe à chaleur air / air Atlantic •sols, peintures et cuisine équipée •sanitaires et VMC hydroréglable Atlantic •maîtrise d’OEuvre avec suivi de chantier DPE projeté après travaux : C Prix •Prix du plateau : 84 700 € •Budget travaux estimatif : 32 200 € Un projet global attractif pour un premier achat, un pied-à-terre ou un investissement locatif avec potentiel de valorisation. Plans, dossier complet et étude du projet disponibles sur demande. La presente annonce immobiliere vise 1 lot situé dans une copropriété de 8 lots au total et ne faisant l'objet d'aucune procédure en cours citée à l'article L. 721-1 du code de la construction et de l'habitation. Montant moyen mensuel de charges déclaré par le vendeur : 35€ par mois (soit 420 € annuel). Honoraires d'agence à la charge du vendeur. Information d'affichage énergétique sur ce bien : classe ENERGIE D indice 288 et classe CLIMAT B indice 9. Les informations sur les risques auxquels ce bien est exposé, y compris l'obligation légale de débroussaillement, sont disponibles sur le site Géorisques : http://www.georisques.gouv.fr. La présente annonce immobilière a été rédigée sous la responsabilité éditoriale de Mme Géraldine Nouri mandataire indépendant en immobilier (sans détention de fonds), agent commercial de la SAS I@D France immatriculé au RSAC de Montauban sous le numéro 979466331, titulaire de la carte de démarchage immobilier pour le compte de la société I@D France SAS.
Cette semaine
Cette annonce est récente
À proximité
Recherche des commodités à proximité...
Détails de l'annonce
Localisation
Ville
Nègrepelisse
Pays
FR
Diagnostics / Énergie
Diagnostic DPE
288
Diagnostic GES
9
Surfaces / Pièces / Composition
Nombre d’étages
2
Chauffage et diagnostics
Diagnostic de performance énergétique (DPE)
a
b
c
d
e
f
g
Indice d'émission de gaz à effet de serre (GES)
a
b
c
d
e
f
g
