Type
Bien immobilierTarif
730 000 €Chambres
4Salles de bain
0Vente Maison/villa 7 pièces
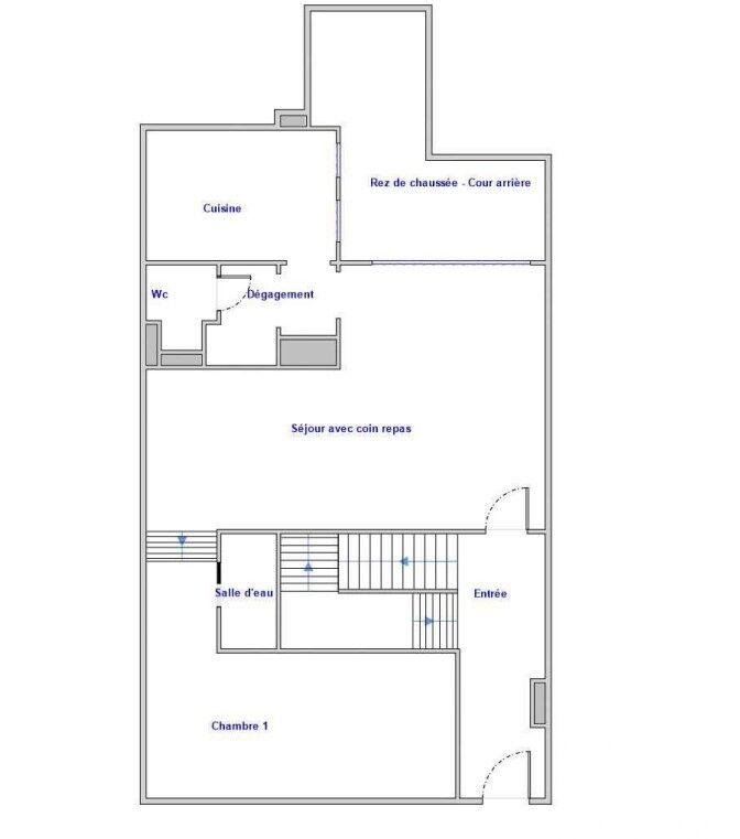
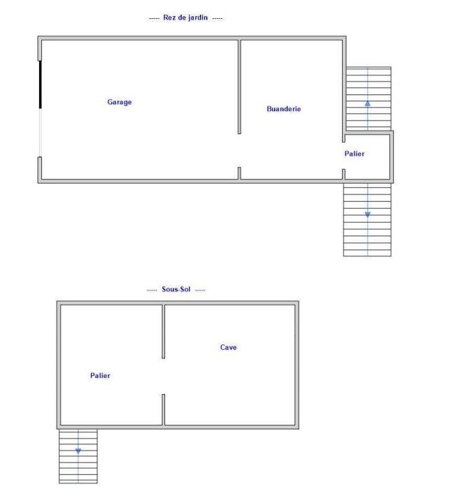
Iad France - David Bitton vous propose : Opportunité à saisir - Au centre du quartier de la varenne sur l'avenue du bac proche de toutes les commodités et avec beaucoup de potentiel cette maison des années 30 de 123 m² habitable pour 170 m² utiles sur 152 m² de parcelle. * Idéal Investisseur : Elle est agencée actuellement en plusieurs appartements indépendant et chambres avec possibilité d'agrandissement par emprise au sol et par surélévation. * Familiale avec quelques travaux et de nombreuses possibilité de réagencement. Chaque espace peut être repenser facilement pour en faire un lieu de vie harmonieux et fonctionnel. * Elle est actuellement dotée : - Au Rdc d'un 2 pièces avec un salon, une chambre, une salle d'eau, une cuisine et un WC séparé ainsi qu'un patio. - Au 1er étage de 2 beaux studios de 18 m² entièrement équipés et indépendants - Au 2ième étage de 3 chambres, une cuisine, une salle d'eau et un WC séparé. - Au Sous sol, vous trouverez un grand garage, une buanderie et une cave. Située à proximité de toutes les commodités (Ecole, RER la varenne et Commerce), cette maison bénéficie d'une exposition Sud et Nord, apportant luminosité et chaleur tout au long de la journée. Il est également possible d'aménager un espace extérieur en fonction de vos envies, que ce soit un jardin, une terrasse. Honoraires d'agence à la charge du vendeur. Information d'affichage énergétique sur ce bien : classe ENERGIE E indice 327 et classe CLIMAT B indice 10. Les informations sur les risques auxquels ce bien est exposé, y compris l'obligation légale de débroussaillement, sont disponibles sur le site Géorisques : http://www.georisques.gouv.fr. La présente annonce immobilière a été rédigée sous la responsabilité éditoriale de M David Bitton mandataire indépendant en immobilier (sans détention de fonds), agent commercial de la SAS I@D France immatriculé au RSAC de CRETEIL sous le numéro 930768148, titulaire de la carte de démarchage immobilier pour le compte de la société I@D France SAS.
À proximité
Recherche des commodités à proximité...
Détails de l'annonce
Localisation
Ville
Saint-Maur-des-Fossés
Pays
FR
Diagnostics / Énergie
Diagnostic DPE
327
Diagnostic GES
10
Surfaces / Pièces / Composition
Nombre d’étages
3
Chauffage et diagnostics
Diagnostic de performance énergétique (DPE)
a
b
c
d
e
f
g
Indice d'émission de gaz à effet de serre (GES)
a
b
c
d
e
f
g
