Vente Maison traditionnelle 9 pièces
Type
Bien immobilierTarif
86 000 €Chambres
6Salles de bain
0Vente Maison traditionnelle 9 pièces
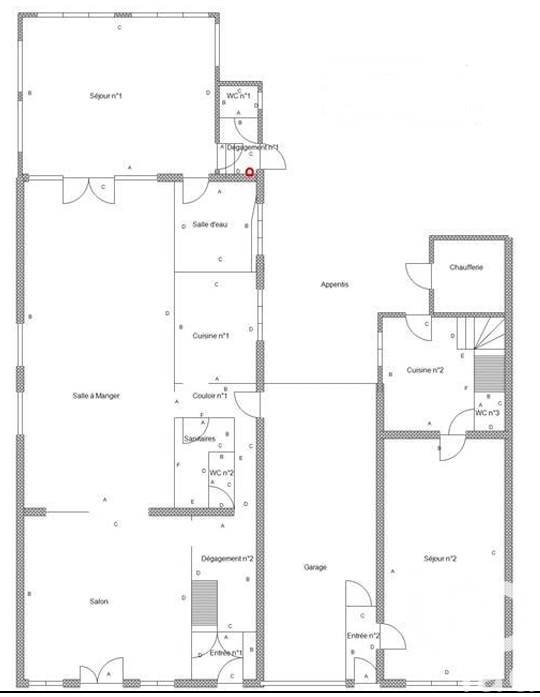
Iad France - Nelly Maupin vous propose : À saisir sur la commune de Montmorillon à côté de la gare ensemble immobilier composé de trois logements distincts avec leurs propres numéros, totalisant une surface de 350 m² environ. Cette propriété, ancien hôtel-restaurant, offre de beaux volumes mais nécessite des travaux de rénovation, idéale pour un investisseur ou une grande famille souhaitant personnaliser leur espace. Le premier logement comprend une grande pièce de vie de 73 m² environ, une chambre de 30 m² environ avec une salle d'eau, une cuisine, un point d'eau wc et un couloir. Chauffage central gaz de ville. Le deuxième logement comprenant un salon de 28 m² environ, une cuisine, une salle de bain, un wc et un couloir desservant quatre chambres (10,12, 12 et 18 m² environ).Chauffage central gaz de ville. Le loft offre une magnifique pièce de vie de 60 m² environ avec mezzanine, une salle de bain, un wc et une chambre de 27 m² environ avec salle d'eau. Chauffage radiateurs électriques. À l'extérieur se trouve un jardin avec une terrasse et deux garages avec accès en contre-bas sur une rue parallèle. Chaudière gaz datant de 2008. Les menuiseries sont en PVC double vitrage et l'ensemble est raccordée au tout-à-l'égout. Des panneaux solaires, installés en 2023, offrent des avantages pour la revente et la consommation d'énergie. La propriété inclut également une cave spacieuse de 35 m² environ. Mitoyenne à une autre habitation, cette maison peut être divisée en trois logements indépendants, offrant un excellent potentiel de rendement locatif ou une vaste demeure familiale. Pour plus de renseignements, merci de me contacter par téléphone. Honoraires d'agence à la charge du vendeur. Information d'affichage énergétique sur ce bien : classe ENERGIE D indice 201 et classe CLIMAT C indice 25. Les informations sur les risques auxquels ce bien est exposé, y compris l'obligation légale de débroussaillement, sont disponibles sur le site Géorisques : http://www.georisques.gouv.fr. La présente annonce immobilière a été rédigée sous la responsabilité éditoriale de Mme Nelly Maupin mandataire indépendant en immobilier (sans détention de fonds), agent commercial de la SAS I@D France immatriculé au RSAC de POITIERS sous le numéro 901199471, titulaire de la carte de démarchage immobilier pour le compte de la société I@D France SAS.
Détails de l'annonce
Localisation
Ville
Montmorillon
Pays
FR
Diagnostics / Énergie
Diagnostic DPE
201
Diagnostic GES
25
Chauffage et diagnostics
Diagnostic de performance énergétique (DPE)
a
b
c
d
e
f
g
Indice d'émission de gaz à effet de serre (GES)
a
b
c
d
e
f
g
