Type
Bien immobilierTarif
277 000 €Chambres
0Salles de bain
0Vente Appartement 5 pièces
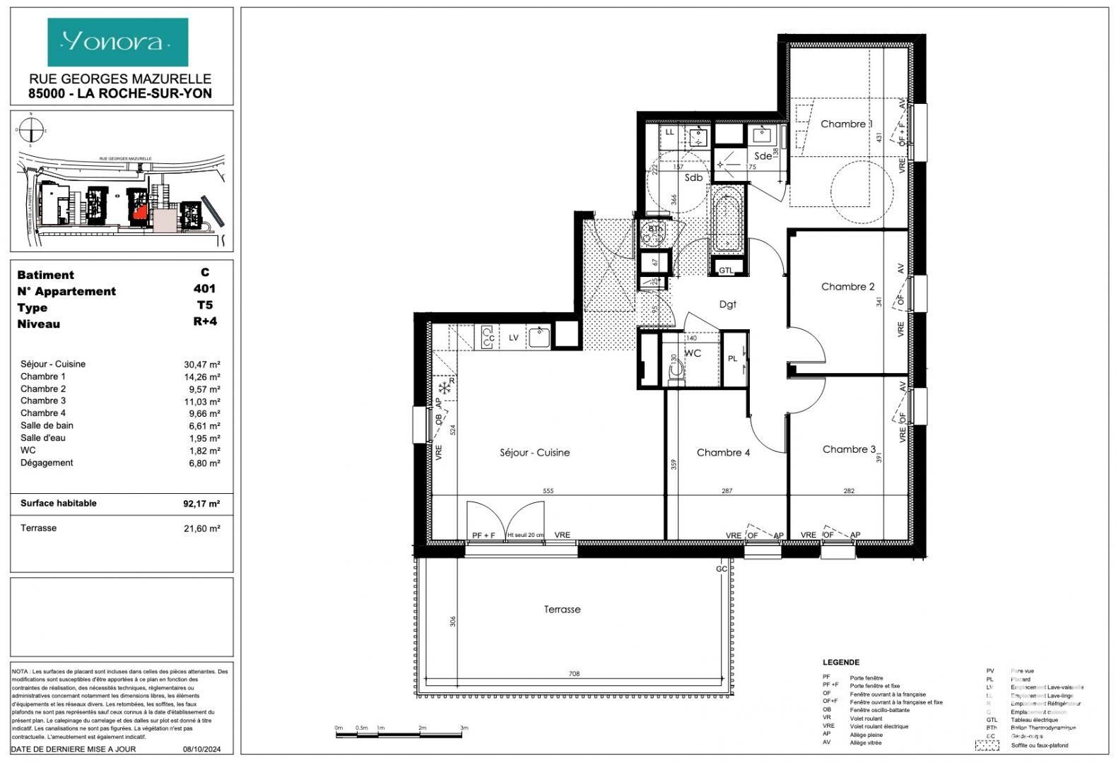
Iad France - Marc Franc (07 80 36 67 20) vous propose : === FRAIS DE NOTAIRE OFFERT jusqu'au 31 janvier 2026 === OPPORTUNITÉ -T4 - Résidence 'YONORA' à LA ROCHE SUR YON : entre Nantes et La Rochelle. Résidence « YONORA», au coeur de la Vendée, conjugue vie à la campagne et atouts de la vie urbaine. - 5 pièces, 92 m² environ, R + 3,. 4 chambres,. orientation Sud / Est,. Terrasse de 22 m² environ,. Parking au sous sol,. frais de notaire estimés à 7500 euros en moyenne. Vous l'avez rêvé, ne manquez pas de concrétiser votre projet, profitez en famille de cette opportunité à LA ROCHE SUR YON, commune qui connait un puissant dynamisme économique. LA ROCHE SUR YON affiche des atouts attractifs, à l'image de son environnement bucolique où se conjuguent douceur de vie et havre de paix. La résidence 'YONORA', aux logements à l’accession libre, lumineux et confortables, dans un cadre idéal où tout est pensé pour que vous puissiez jouir de logements aux nombreux avantages. Autres logements encore disponibles : - de 2 au 5 pièces, - de 41 à 97 m² environ, - jardin privatif avec terrasse ou balcon, - parking au sous-sol (lot secondaire) Règlementation Environnementale RE 2020. Livraison prévisionnelle 4ème T 2027. Contactez-moi pour en savoir plus et réserver ! Honoraires d’agence à la charge du vendeur. Bien non soumis au DPE. Les informations sur les risques auxquels ce bien est exposé sont disponibles sur le site Géorisques : www.georisques.gouv.fr. La présente annonce immobilière a été rédigée sous la responsabilité éditoriale de M. Marc Franc EI (ID 83540), mandataire indépendant en immobilier (sans détention de fonds), agent commercial de la SAS I@D France immatriculé au RSAC de VANNES sous le numéro 931732952, titulaire de la carte de démarchage immobilier pour le compte de la société I@D France SAS. Retrouvez tous nos biens sur notre site internet. www.iadfrance.fr.
À proximité
Recherche des commodités à proximité...
Détails de l'annonce
Localisation
Ville
La Roche-sur-Yon
Pays
FR
Surfaces / Pièces / Composition
Nombre d’étages
Chauffage et diagnostics
Diagnostic de performance énergétique (DPE)
a
b
c
d
e
f
g
Indice d'émission de gaz à effet de serre (GES)
a
b
c
d
e
f
g
