Trouver...

Language: FR

Devise: EUR

Vente appartement 5 pièces

Publié le 6 December 2025
Type
Bien immobilier
Tarif
190 000 €
Chambres
0
Salles de bain
0

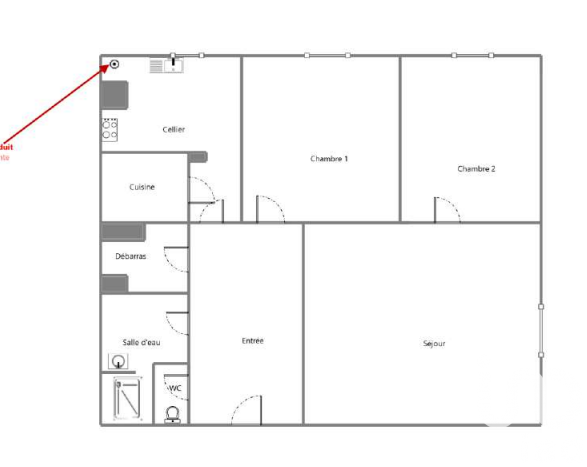
Vente appartement 5 pièces

Iad France - Céline Royer vous propose : Brest Kergoat - Bel appartement lumineux et rénové, type T5,4 chambres. Cave. Balcon - Libre de tout locataire - UBO et futur tram à proximité Situé au 4ème et dernier étage, appartement entièrement rénové comprenant une entrée, une cuisine récente, un coin salon, 4 chambres avec fermeture individuelle, une grande salle d'eau et buanderie. Grande cave de 12 m². Balcon de 4,5 m². Huisseries en PVC avec volets électriques Mode de chauffage individuel, production d'eau chaude et cuisson au gaz de ville avec radiateurs en acier récents Copropriété bien entretenue (cage escalier refaite 2022, ravalement en 2018, toiture en 2014). Charges de copro : 950€ / an Garage à vélos Taxe foncière : 1000€ Stationnement dans la rue gratuit et facile Vendu meublé (mobilier récent) Proche de l'UBO et Tramway Idéale pour du locatif avec 4 loyers, rentabilité à 9% brute, mais aussi pour de la résidence principale car possibilité d'agrandir le salon par 1 ou 2 chambre (s) La presente annonce immobiliere vise 1 lot situé dans une copropriété de 58 lots au total et ne faisant l'objet d'aucune procédure en cours citée à l'article L. 721-1 du code de la construction et de l'habitation. Montant moyen mensuel de charges déclaré par le vendeur : 78€ par mois (soit 936 € annuel). Honoraires d'agence à la charge du vendeur. Information d'affichage énergétique sur ce bien : classe ENERGIE E indice 315 et classe CLIMAT E indice 67. Les informations sur les risques auxquels ce bien est exposé, y compris l'obligation légale de débroussaillement, sont disponibles sur le site Géorisques : http://www.georisques.gouv.fr. La présente annonce immobilière a été rédigée sous la responsabilité éditoriale de Mme Céline Royer mandataire indépendant en immobilier (sans détention de fonds), agent commercial de la SAS I@D France immatriculé au RSAC de BREST sous le numéro 849897236, titulaire de la carte de démarchage immobilier pour le compte de la société I@D France SAS.

À proximité

Recherche des commodités à proximité...

Détails de l'annonce

Localisation

Ville
Brest
Pays
FR

Diagnostics / Énergie

Diagnostic DPE
315
Diagnostic GES
67

Surfaces / Pièces / Composition

Nombre d’étages
4
Étage
4

Chauffage et diagnostics

Diagnostic de performance énergétique (DPE)
a
b
c
d
e
f
g
Indice d'émission de gaz à effet de serre (GES)
a
b
c
d
e
f
g
Rappelez-moi