Type
Bien immobilierTarif
265 000 €Chambres
4Salles de bain
0Vente Maison/villa 5 pièces
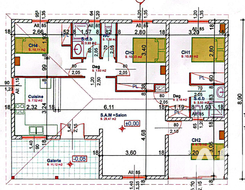
Iad France - Yohan Demandrille vous propose : Maison plain-pied 4 chambres + annexe – Goyave Située sur la commune de Goyave, dans un secteur résidentiel calme et verdoyant, cette maison de plain-pied construite en 2004 offre un cadre de vie agréable, idéal pour une famille. D’une surface habitable d’environ 86 m², elle comprend : • 4 chambres • 2 salles d’eau • 1 WC • un séjour lumineux • une cuisine fonctionnelle • une galerie / terrasse couverte idéale pour les repas et moments de détente Atout supplémentaire : un espace annexe type atelier / stockage, offrant un potentiel d’aménagement selon vos besoins. Extérieur aménagé facile d’entretien, sans jardin à entretenir. Environnement paisible, proche écoles, commerces et axes principaux. Un plan est également disponible pour visualiser facilement la distribution des pièces. Honoraires d'agence à la charge du vendeur. Bien non soumis au DPE. Les informations sur les risques auxquels ce bien est exposé, y compris l'obligation légale de débroussaillement, sont disponibles sur le site Géorisques : http://www.georisques.gouv.fr. La présente annonce immobilière a été rédigée sous la responsabilité éditoriale de M Yohan Demandrille mandataire indépendant en immobilier (sans détention de fonds), agent commercial de la SAS I@D France immatriculé au RSAC de Pointe à pitre sous le numéro 942202367, titulaire de la carte de démarchage immobilier pour le compte de la société I@D France SAS.
Cette semaine
Cette annonce est récente
À proximité
Recherche des commodités à proximité...
Détails de l'annonce
Localisation
Ville
Goyave
Pays
FR
Diagnostics / Énergie
Diagnostic DPE
24
Surfaces / Pièces / Composition
Nombre d’étages
Chauffage et diagnostics
Diagnostic de performance énergétique (DPE)
a
b
c
d
e
f
g
Indice d'émission de gaz à effet de serre (GES)
a
b
c
d
e
f
g
