Type
Bien immobilierTarif
395 000 €Chambres
4Salles de bain
0Vente Maison/villa 5 pièces
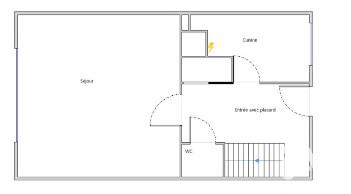
Iad France - Jordan PERSILLET vous propose : Bienvenue à Venansault, au cOEur de cette charmante commune, dans une magnifique maison de 212 m² nichée sur un terrain de 1100 m², offrant un cadre de vie exceptionnel à toute votre famille. Cette belle grange datant de 1900, propose un espace de vie généreux de plus de 60 m², avec une véranda, 4 chambres idéales pour accueillir votre famille, un bureau et une buanderie,. De plus, 2 salles d'eau et 2 toilettes garantissent un confort optimal pour tous les habitants. Un très grand garage complète le tout. Si vous appréciez les espaces extérieurs, vous serez comblés par le jardin parfaitement entretenu avec sa terrasse, idéal pour des moments de détente. Le plus de ce bien : un second terrain situé en face de la maison de plus de 2000 m² permettra d'accueillir vos animaux ou de vous reposer dans un cadre calme et bucolique. Les équipements de cette maison sauront répondre à toutes vos attentes de confort : fibre optique pour rester connecté, une vmc pour une bonne qualité de l'air, et un chauffage individuel performant combinant radiateurs et poêle à bois. Située dans un quartier calme et recherché, cette maison allie le charme de l'ancien à des équipements modernes, offrant ainsi un confort de vie optimal. N'attendez plus pour visiter cette perle rare à Venansault, un bien d'exception à ne pas manquer. Contactez-moi dès maintenant pour organiser une visite et laissez-vous séduire par le charme de ce bien unique. Honoraires d'agence à la charge du vendeur. Information d'affichage énergétique sur ce bien : classe ENERGIE C indice 171 et classe CLIMAT A indice 5. Les informations sur les risques auxquels ce bien est exposé, y compris l'obligation légale de débroussaillement, sont disponibles sur le site Géorisques : http://www.georisques.gouv.fr. La présente annonce immobilière a été rédigée sous la responsabilité éditoriale de M Jordan PERSILLET mandataire indépendant en immobilier (sans détention de fonds), agent commercial de la SAS I@D France immatriculé au RSAC de LA ROCHE SUR YON sous le numéro 880245543, titulaire de la carte de démarchage immobilier pour le compte de la société I@D France SAS.
À proximité
Recherche des commodités à proximité...
Détails de l'annonce
Localisation
Ville
Venansault
Pays
FR
Diagnostics / Énergie
Diagnostic DPE
171
Diagnostic GES
5
Chauffage et diagnostics
Diagnostic de performance énergétique (DPE)
a
b
c
d
e
f
g
Indice d'émission de gaz à effet de serre (GES)
a
b
c
d
e
f
g
