Type
Bien immobilierTarif
752 500 €Chambres
6Salles de bain
0Vente Maison de ville 7 pièces
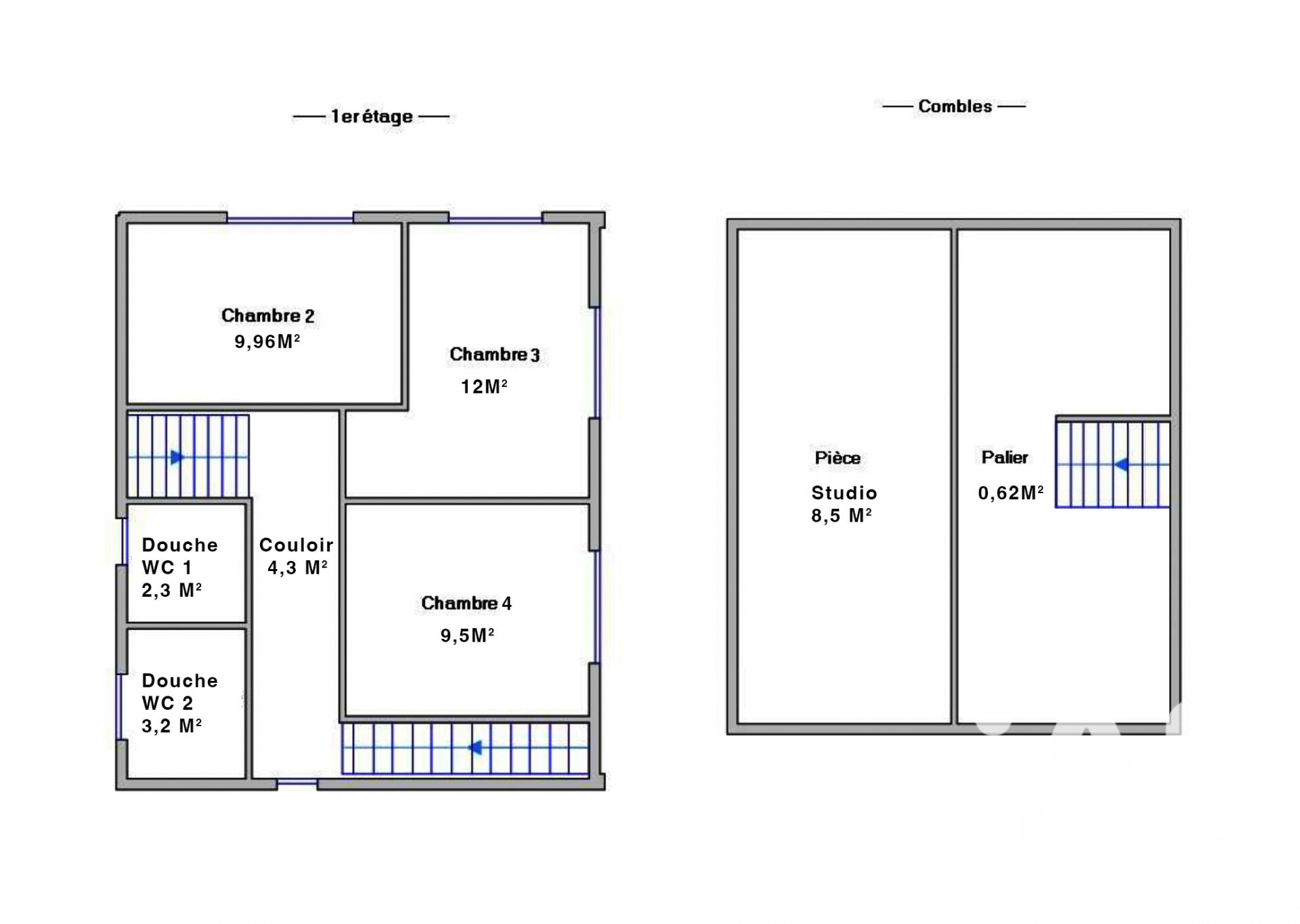
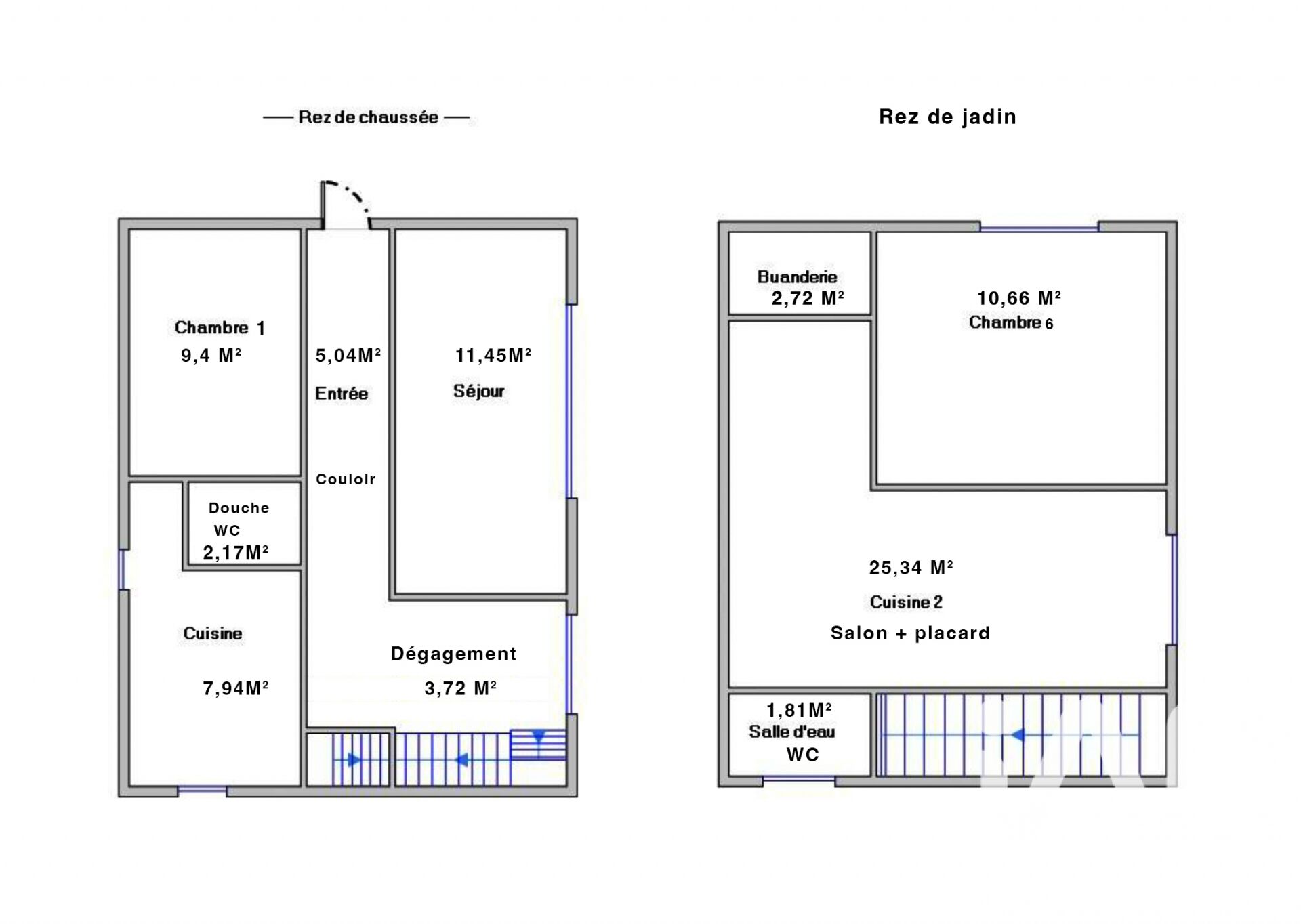
Iad France - Fang Zhang vous propose : Située dans un quartier pavillonnaire prisé de Villejuif (94), cette élégante maison individuelle offre une surface de 131 m², édifiée sur un terrain de 244 m². Elle bénéficie d’un jardin privatif et d’un cadre de vie calme et agréable. À seulement 2 minutes à pied du métro ligne 7, du futur métro ligne 15 et du tramway T7 (station Louis Aragon), avec liaison directe vers l’aéroport d’Orly. Rénovation complète en 2024 – DPE : C Composition du bien : Rez-de-jardin : 1 chambre, une salle d’eau et des WC Rez-de-chaussée : séjour lumineux, 1 chambre, cuisine entièrement équipée, WC avec douche Premier étage : 3 chambres avec cuisine, 2 salles d’eau et 2 WC communs Combles aménagés : 1 chambre avec cuisine et WC Une place de parking
, Idéal pour résidence principale, colocation ou investissement locatif Très fort rendement locatif :
Location Airbnb autorisée toute l’année, avec un revenu mensuel estimé à 6 500 € Proche des universités, établissements scolaires, commerces et transports, à seulement 4 km de Paris – Porte d’Italie Permis de construire en cours (PCMI) pour un projet d’environ 160 m² bâtis, avec 137 m² constructibles supplémentaires. Honoraires d'agence à la charge du vendeur. Information d'affichage énergétique sur ce bien : classe ENERGIE C indice 147 et classe CLIMAT C indice 29. Les informations sur les risques auxquels ce bien est exposé, y compris l'obligation légale de débroussaillement, sont disponibles sur le site Géorisques : http://www.georisques.gouv.fr. La présente annonce immobilière a été rédigée sous la responsabilité éditoriale de Mme Fang Zhang mandataire indépendant en immobilier (sans détention de fonds), agent commercial de la SAS I@D France immatriculé au RSAC de Créteil sous le numéro 513105601, titulaire de la carte de démarchage immobilier pour le compte de la société I@D France SAS.
À proximité
Recherche des commodités à proximité...
Détails de l'annonce
Localisation
Ville
Villejuif
Pays
FR
Diagnostics / Énergie
Diagnostic DPE
147
Diagnostic GES
29
Surfaces / Pièces / Composition
Nombre d’étages
2
Chauffage et diagnostics
Diagnostic de performance énergétique (DPE)
a
b
c
d
e
f
g
Indice d'émission de gaz à effet de serre (GES)
a
b
c
d
e
f
g
