Type
Bien immobilierTarif
489 000 €Chambres
2Salles de bain
0Vente Appartement 3 pièces
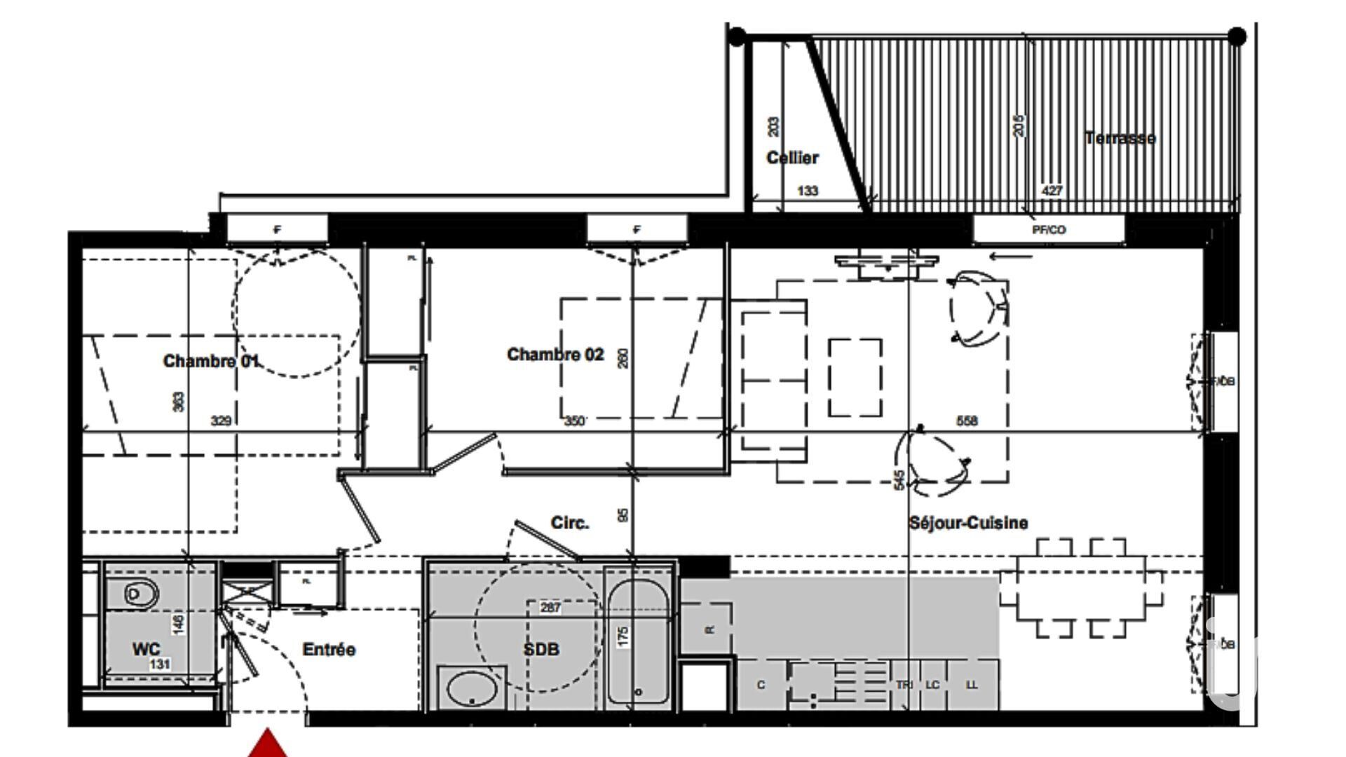
Iad France - Sarah Rozière (06 99 86 19 42) vous propose : Appartement T3 avec terrasse à Saint-Julien-en-Genevois. Au cOEur du premier quartier bas carbone de Haute-Savoie, la résidence contemporaine NOVA – Interface s’inscrit dans une démarche innovante et durable. À deux pas de la douane de Perly, cette adresse unique conjugue proximité avec Genève, modernité architecturale et qualité de vie. Les habitants profitent d’espaces verts communs (verger partagé, aire de jeux, compost collectif) et de mobilités douces optimisées. Disponible 2028. Un appartement raffiné : Situé au 3 ème étage, cet appartement T3 de 68 m² environ habitables se prolonge par une terrasse de 10 m² environ. - Séjour / cuisine de 31 m² environ. - Deux belles chambres. - Salle de bains moderne et wc séparés. - Annexes incluses : 1 box en sous-sol et 1 cellier. Des belles prestations : - Structure innovante en bois et béton bas carbone. - Volets roulants motorisés ou brise-soleil orientables en aluminium. - Production collective de chauffage et eau chaude par chaufferie biomasse avec complément gaz. - Résidence sécurisée avec ascenseur, visiophone et stationnements en sous-sol L’art de vivre à Saint-Julien-en-Genevois : - À seulement quelques mètres de la frontière suisse et de la douane de Perly. - Accès rapide à Genève via bus et futur tramway T5. - Nombreux commerces, services et écoles accessibles à pied. - Gare TER et Léman Express à proximité. - Espaces verts paysagers et verger partagé. N’hésitez pas à me contacter pour plus d’informations ou pour un accompagnement sur mesure. Honoraires d’agence à la charge du vendeur. Bien non soumis au DPE. Les informations sur les risques auxquels ce bien est exposé sont disponibles sur le site Géorisques : www.georisques.gouv.fr. La présente annonce immobilière a été rédigée sous la responsabilité éditoriale de Mlle Sarah Rozière EI (ID 83696), mandataire indépendant en immobilier (sans détention de fonds), agent commercial de la SAS I@D France immatriculé au RSAC de Clermont-Ferrand sous le numéro 978616993, titulaire de la carte de démarchage immobilier pour le compte de la société I@D France SAS. Retrouvez tous nos biens sur notre site internet. www.iadfrance.fr.
À proximité
Recherche des commodités à proximité...
Détails de l'annonce
Localisation
Ville
Saint-Julien-en-Genevois
Pays
FR
Surfaces / Pièces / Composition
Nombre d’étages
5
Étage
3
Chauffage et diagnostics
Diagnostic de performance énergétique (DPE)
a
b
c
d
e
f
g
Indice d'émission de gaz à effet de serre (GES)
a
b
c
d
e
f
g
