Type
Bien immobilierTarif
299 000 €Chambres
4Salles de bain
0Vente Maison traditionnelle 6 pièces
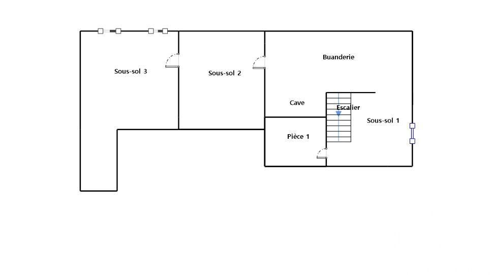
Iad France - Aurelie Outhier vous propose : * AUCUN TRAVAUX À PRÉVOIR pour cette Maison de 138 m² 4 chambres dont 1 suite parentale sur SOUS-SOL et terrain de 954 m² à Buchères * Etiquette DPE B. Une occasion rare s'offre à vous avec cette maison offrant un cadre de vie spacieux et fonctionnel pour votre famille. La maison d'une superficie de 138 m² est sur sous-sol total et implantée sur un terrain de 954 m², proche des commerces et transports en communs. Une partie de la maison date des années 70', rénovée en 2022, et une extension a été réalisée en 2022. C'est donc un produit récent qui vous est proposé ! Le RDC surélevé se compose ainsi : entrée avec placard, vaste pièce de vie de 50 m² idéale pour les moments de convivialité en famille ou entre amis comprenant cuisine aménagée et équipée avec îlot et séjour disposant de baies à galandage, avec accès terrasse. Un cellier est attenant à la cuisine, pratique et parfait pour stocker vos courses ! Le dégagement dessert des wc avec fenêtre et lave-mains, une salle de bains avec baignoire et douche à l'italienne, 3 chambres, et 1 suite parentale composée de la chambre, son dressing et sa salle d'eau avec douche à l'italienne et wc. Le sous-sol total est composé de plusieurs espaces : pièces fermées pour vos rangements, espace stationnement, buanderie, cave. Pour votre confort : double vitrage, volets roulants électriques, chauffage / clim réversible air / air, sèches-serviettes dans les SDB, eau chaude par cumulus, plomberie et électricité récentes, adoucisseur à eau, VMC, prises ethernet dans chaque chambre, fibre optique, point de recharge véhicule, stationnement pour vos invités dans la propriété. Tout-à-l'égout. Commune de TCM, accès rocade, autoroute et Troyes rapide, proche des commerces de Buchères (Carrefour Contact, boulangerie). À proximité immédiate de la ligne de bus TCAT ligne 2, vous bénéficiez d'une facilité d'accès aux transports en commun pour vos déplacements quotidiens. Taxe foncière : 670 euros. Cette maison, en excellent état suite à une rénovation et extension récentes, constitue une véritable opportunité à Buchères. Calme, espace et confort sont au rendez-vous pour votre futur cocon familial. Ne laissez pas passer cette occasion, appelez-moi pour en savoir plus et organiser une éventuelle visite ! Visite en vidéo disponible. Honoraires d'agence à la charge du vendeur. Information d'affichage énergétique sur ce bien : classe ENERGIE B indice 108 et classe CLIMAT A indice 4. Les informations sur les risques auxquels ce bien est exposé, y compris l'obligation légale de débroussaillement, sont disponibles sur le site Géorisques : http://www.georisques.gouv.fr. La présente annonce immobilière a été rédigée sous la responsabilité éditoriale de Mme Aurelie Outhier mandataire indépendant en immobilier (sans détention de fonds), agent commercial de la SAS I@D France immatriculé au RSAC de TROYES sous le numéro 893032383, titulaire de la carte de démarchage immobilier pour le compte de la société I@D France SAS.
À proximité
Recherche des commodités à proximité...
Détails de l'annonce
Localisation
Ville
Buchères
Pays
FR
Diagnostics / Énergie
Diagnostic DPE
108
Diagnostic GES
4
Chauffage et diagnostics
Diagnostic de performance énergétique (DPE)
a
b
c
d
e
f
g
Indice d'émission de gaz à effet de serre (GES)
a
b
c
d
e
f
g
