Type
Bien immobilierTarif
195 000 €Chambres
0Salles de bain
0Vente Boutique/Local commercial 146 m²
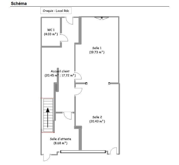
Iad France - Jean Saul (07 56 93 00 86) vous propose : À DAMMARIE-LES-LYS, au centre commercial La Vilaubois, découvrez ce Local professionnel de 146 m² environ Idéal pour les activités de Santé, Optique ou Centre paramédical. Ce local est idéal pour : - Un cabinet pluridisciplinaire. - Un opticien indépendant ou franchisé. - Un laboratoire d’analyses. - Un centre d’ophtalmologie. - Un cabinet médical (généraliste ou spécialiste). - Des kinésithérapeutes / podologues / orthophonistes. - Des Services paramédicaux nécessitant plusieurs pièces. Le local se situe au cOEur du centre commercial La Vilaubois, un emplacement avec des parkings et commerces. Organisation intérieure : 3 niveaux fonctionnels Au Rez-de-chaussée : 57 m² environ - Une spacieuse zone d’accueil / réception - Une salle d’attente. - Deux grands bureaux / salles de consultation (environ 20 m² environ chacun). - Un WC PMR. Idéal pour un accueil client bien séparé des salles de soins. 1er étage : espaces dédiés aux praticiens - 3 salles de consultation supplémentaires (environ11 à 22 m² environ chacune). - Un Palier / dégagement. - Un WC. Ensemble optimisé pour un pôle médical multi-praticiens ou pour un opticien voulant séparer vente / atelier / examens de vue. 2e étage : grande mezzanine de 23 m² environ Possibilité de stockage ou d’espace administratif. Points forts du local : - Emplacement dans un secteur résidentiel dense Flux piéton. - Vitrine large permettant qui donne plus de visibilité. - Nombreux stationnements. - Distribution parfaite pour un cabinet pluridisciplinaire. DPE : C GES : À Faibles charges : 800 € / an Taxe foncière 2025 : 2 000 € Prix de vente : 250 000 € honoraires inclus. Un actif rare, immédiatement exploitable dans le domaine médical ou paramédical. Je suis disponible par téléphone pour toutes questions ou pour planifier une visite. Information d'affichage énergétique sur le bien associé à cette annonce : classe ENERGIE D indice 156 et classe CLIMAT A indice 4. La présente annonce immobilière a été rédigée sous la responsabilité éditoriale de M. Jean Saul (ID 86100), Agent Commercial mandataire en immobilier immatriculé au Registre Spécial des Agents Commerciaux (RSAC) du Tribunal de Commerce de Evry sous le numéro 844165571 Retrouvez tous nos biens sur notre site internet. www.iadfrance.fr.
Ce mois
Cette annonce est récente
À proximité
Recherche des commodités à proximité...
Détails de l'annonce
Localisation
Ville
Dammarie-les-Lys
Pays
FR
Surfaces / Pièces / Composition
Nombre d’étages
Chauffage et diagnostics
Diagnostic de performance énergétique (DPE)
a
b
c
d
e
f
g
Indice d'émission de gaz à effet de serre (GES)
a
b
c
d
e
f
g
