Type
Bien immobilierTarif
765 000 €Chambres
4Salles de bain
0Vente Maison/villa 6 pièces
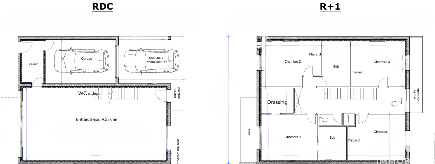
Iad France - Pascal Loeb vous propose : Dans un cadre privilégié, au cOEur de Leymen, charmant village frontalier de Bâle, cette maison rénovée de 175 m² habitables avec piscine offre des prestations rares, alliant espace, confort et tranquillité. Vous profiterez d’un environnement de qualité, avec des commerces de proximité, une école et le tramway qui relie directement Leymen à Bâle. Dès les premiers pas, vous découvrirez l'exceptionnel espace de vie de plus de 70 m², baignée de lumière, offrant un cadre chaleureux avec un salon agrémenté d’une cheminée et une grande cuisine entièrement équipée et conviviale. La maison dispose de 4 chambres spacieuses, dont une suite parentale de 30 m² avec baignoire, douche et wc. Une salle de douche supplémentaire ainsi que des wc indépendants complètent cet espace. Le sous-sol aménagé et chauffé offre un bel espace supplémentaire avec une grande buanderie entièrement aménagée et une pièce polyvalente pouvant servir de chambre d’amis, de bureau ou de salle de loisirs. Côté extérieur, le jardin est intimiste et sans aucun vis-à-vis. Vous profiterez d’une belle piscine chauffée et d’une terrasse donnant sur un pool house aménagée avec une cuisine d’été, ainsi qu’un espace douche et WC. Ce pool house comprend également un vaste volume à l'arrière, avec accès indépendant, offrant différentes possibilités d’aménagement futur. Enfin, un double garage avec deux portes motorisées ainsi que des places de parking extérieures complètent les prestations de cette belle maison. Un bien rare sur le secteur, idéal pour une famille : * Grande pièce de vie de plus de 70 m² (salon / cuisine) * 4 chambres (dont une suite parentale) * Sous-sol entièrement aménagé et chauffé avec buanderie et grande pièce polyvalente * Piscine chauffée avec dépendance comprenant une cuisine d’été, jardin arboré * Intimiste et sans vis-à-vis Honoraires d'agence à la charge du vendeur. Information d'affichage énergétique sur ce bien : classe ENERGIE D indice 206 et classe CLIMAT D indice 41. Les informations sur les risques auxquels ce bien est exposé, y compris l'obligation légale de débroussaillement, sont disponibles sur le site Géorisques : http://www.georisques.gouv.fr. La présente annonce immobilière a été rédigée sous la responsabilité éditoriale de M Pascal Loeb mandataire indépendant en immobilier (sans détention de fonds), agent commercial de la SAS I@D France immatriculé au RSAC de MULHOUSE sous le numéro 887890341, titulaire de la carte de démarchage immobilier pour le compte de la société I@D France SAS.
À proximité
Recherche des commodités à proximité...
Détails de l'annonce
Localisation
Ville
Leymen
Pays
FR
Diagnostics / Énergie
Diagnostic DPE
206
Diagnostic GES
41
Chauffage et diagnostics
Diagnostic de performance énergétique (DPE)
a
b
c
d
e
f
g
Indice d'émission de gaz à effet de serre (GES)
a
b
c
d
e
f
g
