Trouver...

Language: FR

Devise: EUR

Type
Bien immobilier
Tarif
253 232 €
Chambres
4
Salles de bain
0

Vente Maison/villa 6 pièces

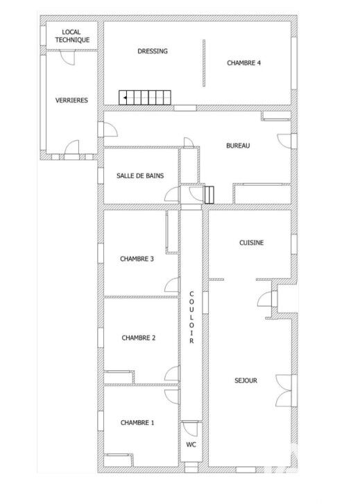
Iad France - Sarah Metivier Schreiber vous propose : Charme et Authenticité pour cette Maison de 176 m² sur un Terrain de 1920 m² à Saint-Romans-lès-Melle Découvrez cette belle maison traditionnelle située dans un environnement calme et préservé à Saint-Romans-lès-Melle. La maison construite dans les années 70 s'étend sur une surface de 176 m², avec un agencement très fonctionnel. L'espace de vie se compose de 3 chambres spacieuses avec placard plus 1 grande chambre avec dressing, idéales pour accueillir toute la famille. De plus, un bureau offrant un espace propice au travail ou à la création. Une belle salle de cinéma privative ainsi qu'une belle piscine finirons de vous séduire. La cuisine équipée et ouverte apporte convivialité et modernité à la maison. C'est un lieu de vie chaleureux où préparer de délicieux repas devient un plaisir. Un salon confortable, agrémenté d'une cheminée, s'ouvre sur l'extérieur et bénéficie d'une belle luminosité naturelle Deux terrasses bien aménagées vous permettent de profiter pleinement de l'environnement extérieur et de partager des moments conviviaux en famille ou entre amis. Un double garage et un espace de stationnement complètent cet ensemble. L'emplacement de cette maison est idéal, offrant tranquillité et intimité tout en restant proche des commodités de la ville. Un véritable havre de paix pour une qualité de vie exceptionnelle. N'hésitez pas à visiter cette maison qui saura vous charmer au premier regard. À visiter sans plus tarder. Honoraires d'agence à la charge du vendeur. Information d'affichage énergétique sur ce bien : classe ENERGIE D indice 204 et classe CLIMAT D indice 39. Les informations sur les risques auxquels ce bien est exposé, y compris l'obligation légale de débroussaillement, sont disponibles sur le site Géorisques : http://www.georisques.gouv.fr. La présente annonce immobilière a été rédigée sous la responsabilité éditoriale de Mme Sarah Metivier Schreiber mandataire indépendant en immobilier (sans détention de fonds), agent commercial de la SAS I@D France immatriculé au RSAC de NIORT sous le numéro 995118270, titulaire de la carte de démarchage immobilier pour le compte de la société I@D France SAS.
Ce mois Cette annonce est récente

À proximité

Recherche des commodités à proximité...

Détails de l'annonce

Localisation

Ville
Saint-Romans-Lès-Melle
Pays
FR

Diagnostics / Énergie

Diagnostic DPE
204
Diagnostic GES
39

Chauffage et diagnostics

Diagnostic de performance énergétique (DPE)
a
b
c
d
e
f
g
Indice d'émission de gaz à effet de serre (GES)
a
b
c
d
e
f
g
Rappelez-moi