Trouver...

Language: FR

Devise: EUR

Vente Maison/villa 5 pièces

Publié le 1 March 2026
Type
Bien immobilier
Tarif
590 000 €
Chambres
4
Salles de bain
0

Vente Maison/villa 5 pièces

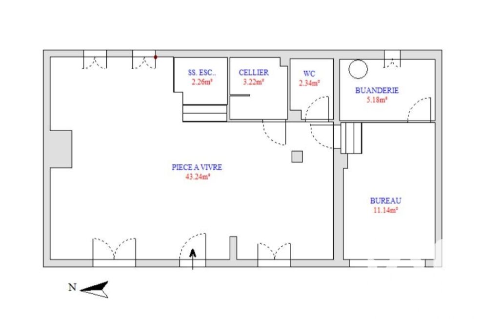
Iad France - Pierre LOMBARD vous propose : EXCLUSIVITE - AURIOL - Moulin de Redon, en position dominante avec une jolie vue sur le massif de la Lare et le Garlaban, au calme, maison T5 de 110 m² sur une parcelle de 1883 m². Le bien se compose comme suit : séjour - cuisine de 43 m², une pièce aménagée de 11 m², une buanderie donnant accès à un grand grenier exploitable pour du rangement, un cellier et un wc indépendant. À l'étage : trois chambres avec placards et une salle d'eau avec wc. À l'extérieur une piscine 7 * 3.5, un coin du jardin aménagé en poulailler, un terrain de pétanque et un beau parking. Informations complémentaires : chauffage par climatisation réversible et par insert, tout à l'égout, fibre, taxe foncière 1778€, panneaux solaires permettant une diminution des frais d'électricité d'environ 50% et chauffe eau solaire. Honoraires d'agence à la charge du vendeur. Information d'affichage énergétique sur ce bien : classe ENERGIE C indice 119 et classe CLIMAT A indice 4. Les informations sur les risques auxquels ce bien est exposé, y compris l'obligation légale de débroussaillement, sont disponibles sur le site Géorisques : http://www.georisques.gouv.fr. La présente annonce immobilière a été rédigée sous la responsabilité éditoriale de M Pierre LOMBARD mandataire indépendant en immobilier (sans détention de fonds), agent commercial de la SAS I@D France immatriculé au RSAC de MARSEILLE sous le numéro 904532629, titulaire de la carte de démarchage immobilier pour le compte de la société I@D France SAS.
Ce mois Cette annonce est récente

À proximité

Recherche des commodités à proximité...

Détails de l'annonce

Localisation

Ville
Auriol
Pays
FR

Diagnostics / Énergie

Diagnostic DPE
119
Diagnostic GES
4

Chauffage et diagnostics

Diagnostic de performance énergétique (DPE)
a
b
c
d
e
f
g
Indice d'émission de gaz à effet de serre (GES)
a
b
c
d
e
f
g
Rappelez-moi