Type
Bien immobilierTarif
200 000 €Chambres
1Salles de bain
0Vente Appartement 2 pièces
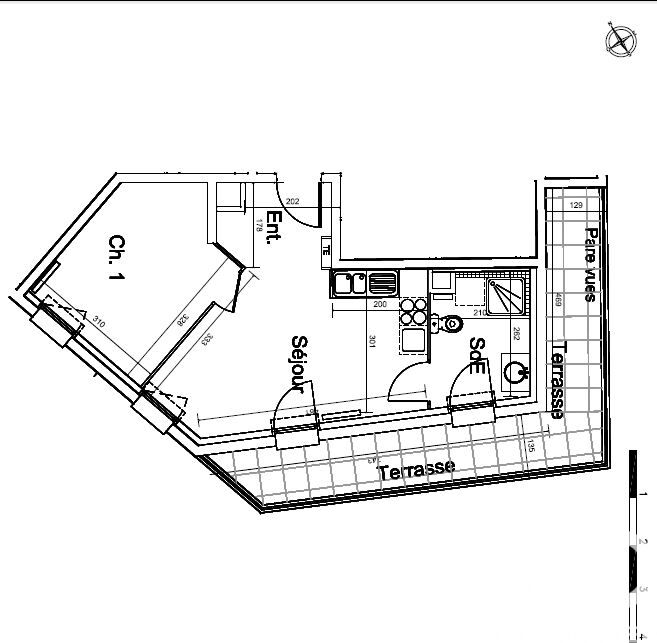
Iad France - Hélène Moesta vous propose : LE BOURGET – 2 PIÈCES RÉCENT AVEC TERRASSE – VENDU LOUÉ MEUBLÉ Idéal investisseur – rentabilité immédiate Au sein d’une copropriété récente de 2013, à taille humaine, découvrez ce bel appartement 2 pièces de 36,6 m², situé au 5ᵉ et dernier étage avec ascenseur, bénéficiant d’une grande terrasse d’environ 15 m², sans vis-à-vis et avec vue dégagée. Le bien, actuellement loué meublé (entièrement refait à neuf en mars 2023), offre une rentabilité immédiate sans vacance locative. Il se compose d’une pièce de vie lumineuse de plus de 20 m² avec espace cuisine aménagé et équipé, d’une chambre confortable d’environ 11 m et d’une salle d’eau fonctionnelle avec sèche-serviettes. Prestations : ✔️ Double vitrage et volets roulants dans toutes les pièces ✔️ Fibre optique ✔️ Résidence sécurisée (digicode, interphone) ✔️ Chauffage et eau chaude collectifs au gaz urbain.
Ce mois
Cette annonce est récente
À proximité
Recherche des commodités à proximité...
Détails de l'annonce
Localisation
Ville
Le Bourget
Pays
FR
Diagnostics / Énergie
Diagnostic DPE
166
Diagnostic GES
33
Surfaces / Pièces / Composition
Nombre d’étages
5
Chauffage et diagnostics
Diagnostic de performance énergétique (DPE)
a
b
c
d
e
f
g
Indice d'émission de gaz à effet de serre (GES)
a
b
c
d
e
f
g
