Type
Bien immobilierTarif
165 000 €Chambres
1Salles de bain
0Vente appartement 2 pièces
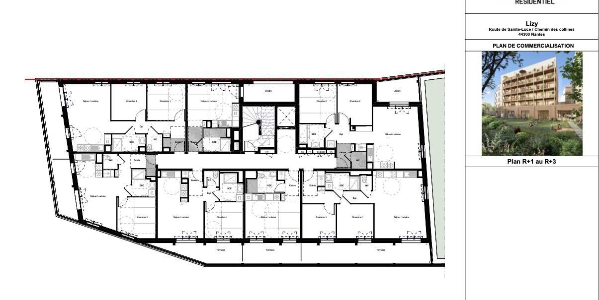
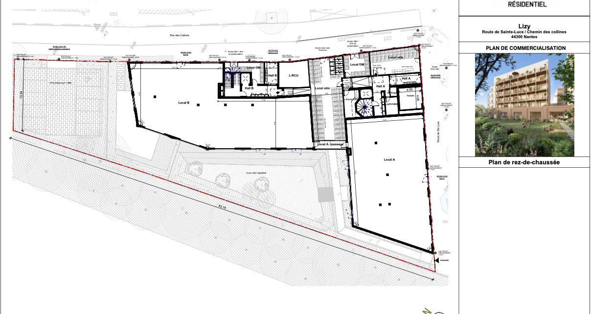
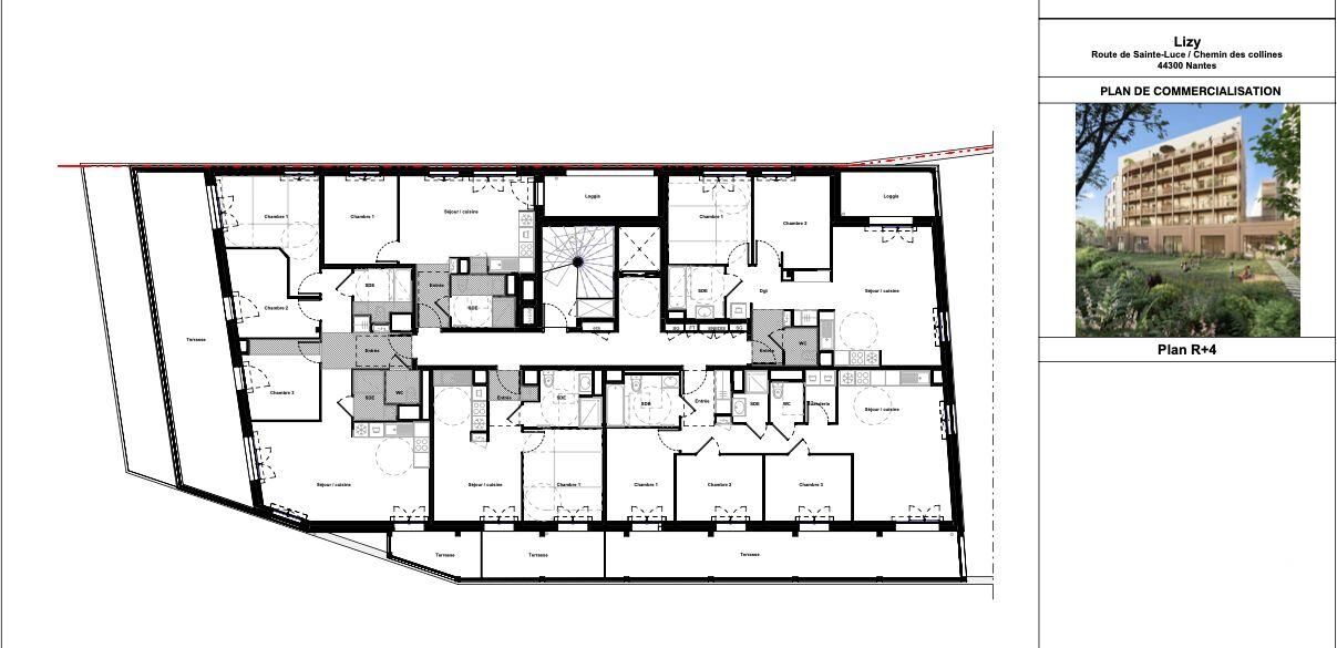
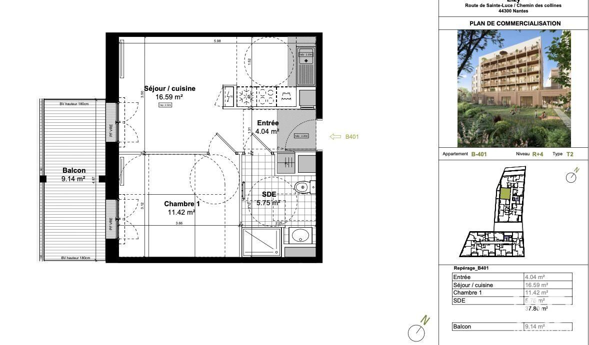
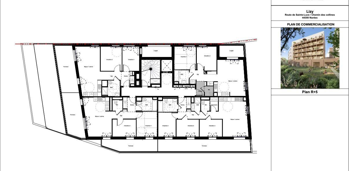
Iad France - Stanley Kollen (07 83 34 91 87) vous propose : Au coeur de L’écoquartier Bottière-Chénaie, à deux pas du Tram 1 / C7 Souillarderie, Appartement neuf de 37,8 m² environ avec en bonus un Balcon de 9,14 m² environ, Valeur locative nue : 570euros soit 3,64% Valeur locative meublée : 684euros soit 3,98% Type : T2 (1 chambre) Etage : 4e Livraison du programme : 3ème trimestre 2027 Aspects techniques : -L'ensemble immobilier sera raccordé au réseau de chaleur urbain de Nantes -La gamme électrique DOOXIE de chez LEGRAND ou équivalent Radiateurs à eau chaude type Reggane de chez FINIMETAL ou équivalent. - Le chauffage des salles d’eau sera assuré par un sèche-serviette eau chaude de chez ATLANTIC ou équivalent - La ventilation des logements s’effectuera au moyen d’une VMC (ventilation mécanique contrôlée) simple flux hygroréglable. - La résidence sera raccordée au réseau fibre optique. Orientation : Ouest Transport : a deux pas du Tram 1 / C7 arret Souillarderie 15 minutes en tramway de la gare SNCF de Nantes, via la ligne 1, Services de proximité : Boulangerie, pharmacie, marché, restaurants, médiathèque, école, crèches et piscine sont accessibles à pied Performance énergétique : la règlementions RE2020 est surpassée Avantages en Résidence principale : TVA réduite à 5,5 % pour les primo-accédants (sous conditions de ressources) PTZ + cumulable (prêt à taux zéro) Exonération de taxe foncière 2 ans (selon fiscalité locale) Avantages pour investisseurs – Logement Locatif Intermédiaire (LLI – Zone A) - TVA réduite à 10% - Exonération de taxe foncière jusqu’à 20 ans - Acquisition via SCI (IR ou IS) - Engagement locatif de 15 à 20 ans, loyers & ressources plafonnés - Revenus stables, forte demande locative en zone tendue - Patrimoine durable dans un quartier en pleine évolution L’écoquartier Bottière-Chénaie est le fruit d’un projet de réaménagement urbain ambitieux, transformant d’anciennes terres maraîchères en un espace de vie moderne et écologique. Le quartier est traversé par le mail Haroun-Tazieff, une promenade arborée, et est agrémenté de bassins et d’un canal, favorisant la biodiversité et le bien-être des résidents. LIZY est la dernière opportunité permettant d’Habitez ou investissez dans le neuf à Nantes avec des conditions particulièrement exceptionnelles. Prix si Tva a 5% : 165 000 euros Prix si Tva a 20% : 187 678euros Plus de renseignements sur demande. Honoraires d’agence à la charge du vendeur. Bien non soumis au DPE. Les informations sur les risques auxquels ce bien est exposé sont disponibles sur le site Géorisques : www.georisques.gouv.fr. La présente annonce immobilière a été rédigée sous la responsabilité éditoriale de M. Stanley Kollen EI (ID 58979), mandataire indépendant en immobilier (sans détention de fonds), agent commercial de la SAS I@D France immatriculé au RSAC de NANTES sous le numéro 533530770, titulaire de la carte de démarchage immobilier pour le compte de la société I@D France SAS. Retrouvez tous nos biens sur notre site internet. www.iadfrance.fr.
À proximité
Recherche des commodités à proximité...
Détails de l'annonce
Localisation
Ville
Nantes
Pays
FR
Surfaces / Pièces / Composition
Nombre d’étages
5
Étage
4
Chauffage et diagnostics
Diagnostic de performance énergétique (DPE)
a
b
c
d
e
f
g
Indice d'émission de gaz à effet de serre (GES)
a
b
c
d
e
f
g
