Type
Bien immobilierTarif
206 000 €Chambres
2Salles de bain
0Vente Appartement 3 pièces
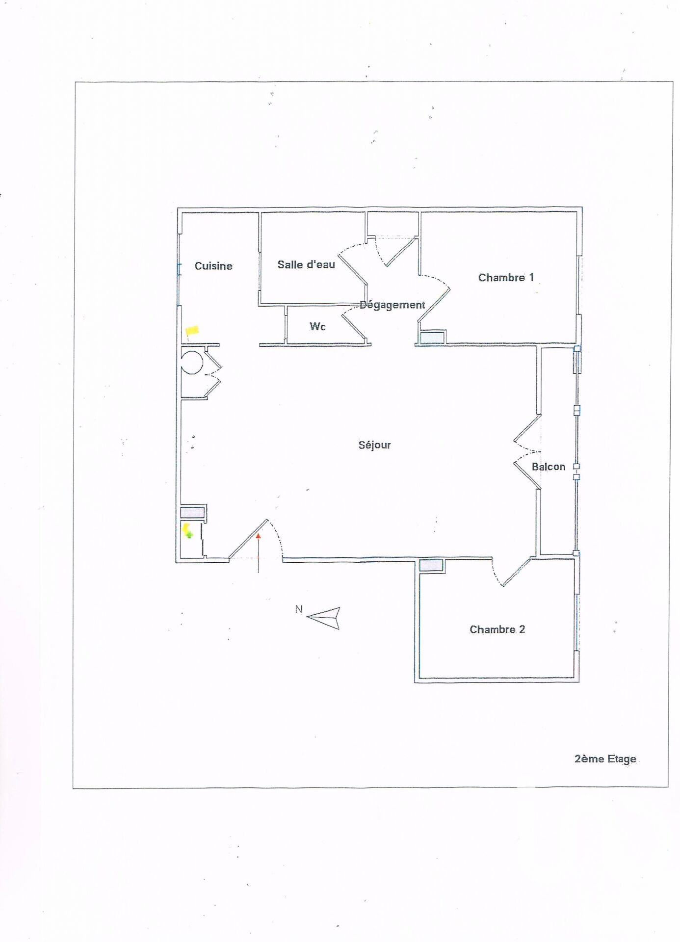
Iad France - Mélanie Dupré vous propose : Appartement de 3 pièces au sud d' Aix-en-Provence, dans le quartier de Beauvalle est idéal pour une famille, un couple ou un investissement locatif Cet appartement de 57,57 m² (Surface au sol totale : 65,44 m²) dont les peintures des murs et plafonds ont été réalisées, est situé au 2 ème étage d'un immeuble de 3 niveaux. Dès l'entrée, vous découvrirez un spacieux séjour de 30,58 m², baigné de lumière grâce à son exposition nord-sud. Il se compose également de 2 chambres mesurant respectivement 9,91 m² et 9,49 m², d'une cuisine séparée, d'une salle d'eau et d'un WC indépendant. Une cave au sous-sol vient compléter ce bien pour vous offrir un espace de stockage supplémentaire. Le stationnement est libre au sein de la résidence fermée et sécurisée assurant la tranquillité et la sérénité des habitants. Situé à 20 minutes à pied du centre-ville d'Aix-en-Provence, vous trouverez à proximité des commerces, bus, facultés, écoles, axes autoroutiers et toutes les commodités facilitant ainsi votre quotidien et vos déplacements. Contactez-moi dès maintenant pour organiser une visite et découvrir tous ses atouts ! La presente annonce immobiliere vise 2 lots situés dans une copropriété de 66 lots au total et ne faisant l'objet d'aucune procédure en cours citée à l'article L. 721-1 du code de la construction et de l'habitation. Montant moyen mensuel de charges déclaré par le vendeur : 175€ par mois (soit 2100 € annuel). Honoraires d'agence à la charge du vendeur. Information d'affichage énergétique sur ce bien : classe ENERGIE D indice 197 et classe CLIMAT B indice 9. Les informations sur les risques auxquels ce bien est exposé, y compris l'obligation légale de débroussaillement, sont disponibles sur le site Géorisques : http://www.georisques.gouv.fr. La présente annonce immobilière a été rédigée sous la responsabilité éditoriale de Mme Mélanie Dupré mandataire indépendant en immobilier (sans détention de fonds), agent commercial de la SAS I@D France immatriculé au RSAC de Aix en Provence sous le numéro 984895821, titulaire de la carte de démarchage immobilier pour le compte de la société I@D France SAS.
À proximité
Recherche des commodités à proximité...
Détails de l'annonce
Localisation
Ville
Aix-en-Provence
Pays
FR
Diagnostics / Énergie
Diagnostic DPE
197
Diagnostic GES
9
Surfaces / Pièces / Composition
Nombre d’étages
3
Étage
2
Chauffage et diagnostics
Diagnostic de performance énergétique (DPE)
a
b
c
d
e
f
g
Indice d'émission de gaz à effet de serre (GES)
a
b
c
d
e
f
g
