Type
Bien immobilierTarif
215 000 €Chambres
2Salles de bain
0Vente Appartement 3 pièces
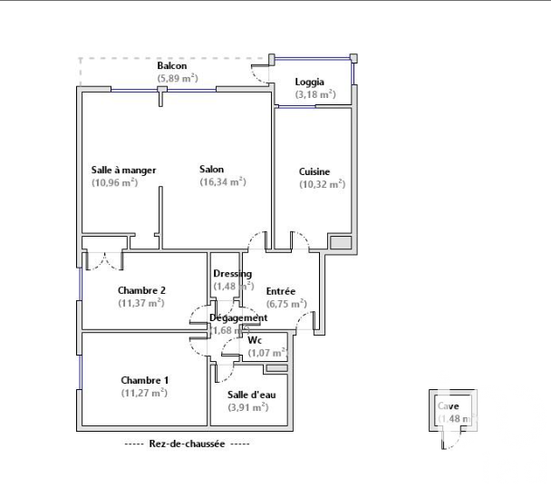
Iad France - Pascal Vigneau vous propose : Proche centre-ville et commodités ce charmant T3 au 1er étage dans une petite résidence de 3 étages comprenant : entrée, salon / cuisine avec balcon, salle d'eau, WC, deux chambres avec placards (dont une avec balcon). Au rez-de-chaussée un box pour un véhicule et une place de parking. Double vitrage Chaudière Gaz. À VISITER RAPIDEMENT ! VISITE VIRTUELLE DISPONIBLE sur demande. T7 à 16 min à pied La presente annonce immobiliere vise 3 lots situés dans une copropriété de 20 lots au total et ne faisant l'objet d'aucune procédure en cours citée à l'article L. 721-1 du code de la construction et de l'habitation. Montant moyen mensuel de charges déclaré par le vendeur : 191.33€ par mois (soit 2296 € annuel). Honoraires d'agence à la charge du vendeur. Information d'affichage énergétique sur ce bien : classe ENERGIE C indice 90 et classe CLIMAT C indice 17. Les informations sur les risques auxquels ce bien est exposé, y compris l'obligation légale de débroussaillement, sont disponibles sur le site Géorisques : http://www.georisques.gouv.fr. La présente annonce immobilière a été rédigée sous la responsabilité éditoriale de M Pascal Vigneau mandataire indépendant en immobilier (sans détention de fonds), agent commercial de la SAS I@D France immatriculé au RSAC de EVRY sous le numéro 839180635, titulaire de la carte de démarchage immobilier pour le compte de la société I@D France SAS.
À proximité
Recherche des commodités à proximité...
Détails de l'annonce
Localisation
Ville
Athis-Mons
Pays
FR
Diagnostics / Énergie
Diagnostic DPE
90
Diagnostic GES
17
Surfaces / Pièces / Composition
Nombre d’étages
3
Chauffage et diagnostics
Diagnostic de performance énergétique (DPE)
a
b
c
d
e
f
g
Indice d'émission de gaz à effet de serre (GES)
a
b
c
d
e
f
g
