Type
Bien immobilierTarif
35 000 €Chambres
0Salles de bain
0Vente Maison de ville 3 pièces
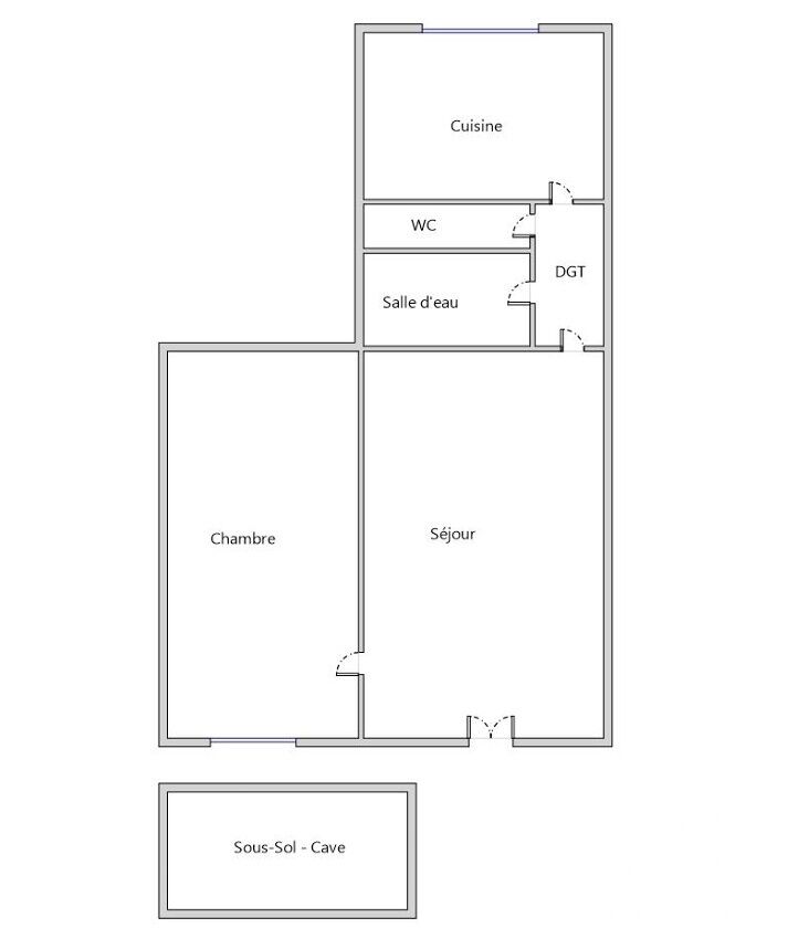
Iad France - Virginie Muller vous propose : Charmante Maison de Ville à Rénover entièrement - Idéal INVESTISSEMENT Venez découvrir cette maison mitoyenne pleine de potentiel au coeur de Le Blanc, offrant un espace de vie de 45 m². Les + ? Jolie verrière, cave et cour lumineuse viennent compléter ce bien. Véritable opportunité d'investissement pour les amateurs de rénovation et de projet de construction, Petite maison = Rapidité d'exécution ! + Le gros oeuvre et la toiture sont sains, l'espace est libéré pour laisser place à vos idées ! Pas de démolition = Pas d'évacuation ! Située dans un quartier calme et recherché, elle offre un cadre de vie agréable à proximité des commodités, le tout à pied. Grenier au dessus, cave en dessous, vous pouvez en faire un petit bijou. Offrez-vous la possibilité de révéler cette jolie verrière et sa courette ensoleillée pour profiter d'un extérieur en plein coeur de ville. (Rue des Alouettes) Saisissez cette occasion d'investir dans un projet immobilier passionnant, où vous pourrez laisser libre cours à votre créativité et faire de cette maison de ville votre cocon ou un investissement locatif. Assainissement collectif - Taxe foncière de 292€ Si vous avez été courageux de lire l'annonce complète, vous serez récompensé en apprenant qu'une OFFRE (raisonnable et sérieuse) pour cette maison est POSSIBLE. ( Après visite naturellement) A très vite par téléphone pour organiser une visite ! Honoraires d'agence à la charge du vendeur. Bien non soumis au DPE. Les informations sur les risques auxquels ce bien est exposé, y compris l'obligation légale de débroussaillement, sont disponibles sur le site Géorisques : http://www.georisques.gouv.fr. La présente annonce immobilière a été rédigée sous la responsabilité éditoriale de Mme Virginie Muller mandataire indépendant en immobilier (sans détention de fonds), agent commercial de la SAS I@D France immatriculé au RSAC de CHATEAUROUX sous le numéro 948424593, titulaire de la carte de démarchage immobilier pour le compte de la société I@D France SAS.
Ce mois
Cette annonce est récente
À proximité
Recherche des commodités à proximité...
Détails de l'annonce
Localisation
Ville
Le Blanc
Pays
FR
Chauffage et diagnostics
Diagnostic de performance énergétique (DPE)
a
b
c
d
e
f
g
Indice d'émission de gaz à effet de serre (GES)
a
b
c
d
e
f
g
