Type
Bien immobilierTarif
1 100 000 €Chambres
0Salles de bain
0Vente Maison/villa 5 pièces
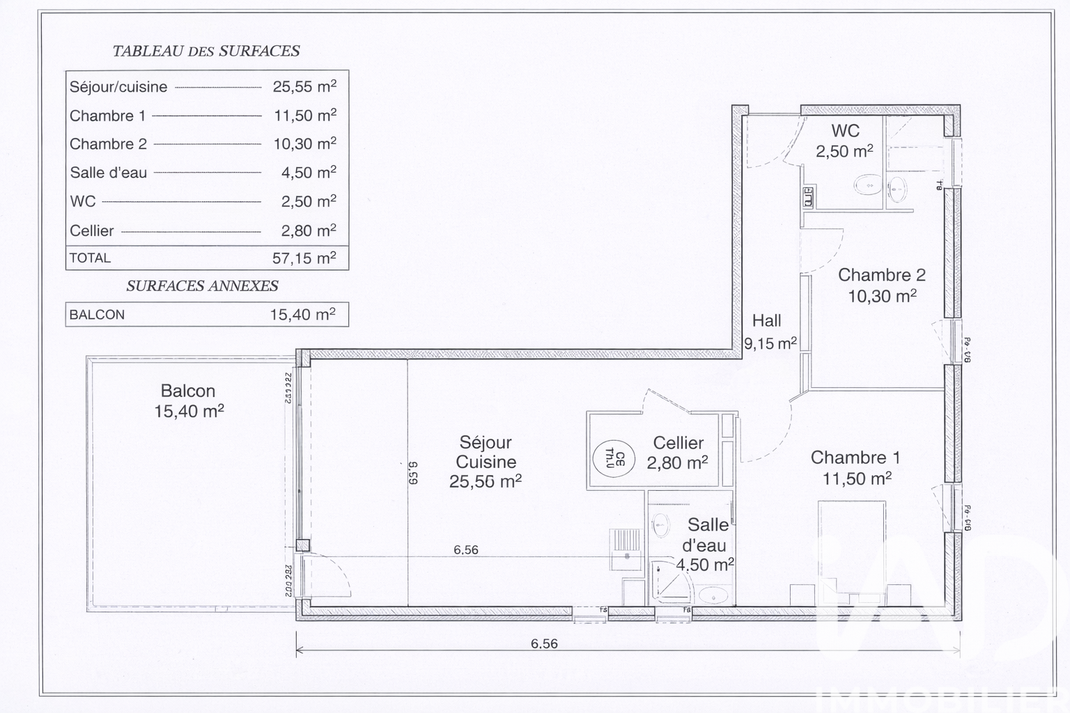
Iad France - Agathe Schmitt vous propose : Opportunité rare au cOEur du quartier Maraîchers à Colmar Sud Nous vous proposons une maison d’architecte unique, conçue par le cabinet d’architecte AGVA, avec son permis de construire déjà accordé, à construire sur un terrain de 7,68 ares, situé en second rang depuis la rue, offrant ainsi un cadre préservé et intimiste. Un terrain privilégié : • Accessible par une voie aménagée, cette parcelle plane bénéficie d’un emplacement rare et recherché. • À l’abri des regards, l’essentiel du terrain n’est pas visible depuis la rue, offrant ainsi calme et discrétion. Une maison d’architecte aux prestations haut de gamme À l’extérieur : • Façades en brique naturelle pleine moulée à la main teinte claire et bardage bois pour une isolation optimale, une grande durabilité et un charme unique. • Deux terrasses en bois, couvertes, pensées comme un véritable prolongement de l’espace intérieur, permettant de profiter pleinement de l’extérieur tout en étant protégé des intempéries et de l’ensoleillement direct. • Garage double pour un stationnement sécurisé. • Entrée principale sous un espace couvert. À l’intérieur : • Une maison à toit plat de plain-pied de 160 m² avec une architecture contemporaine unique offrant de beaux volumes. • 1 grande chambre avec salle de bain privative, 2 chambres, 1 salle de bain, 1 bureau. • Menuiseries intérieures sur mesures dans toutes les pièces. • Parquet en bois sauf dans les salles de bain. • Une cuisine sur mesure, ouverte sur la terrasse Est, et un espace salon / séjour lumineux donnant sur la terrasse Sud. • Menuiseries haut de gamme : fenêtres double vitrage avec châssis en bois ou bois / aluminium et brise-soleil orientables. • Plancher chauffant pour un confort optimal. • Personnalisation complète des volumes des pièces et des matériaux pour une maison sur-mesure. • Chauffage par pompe à chaleur eau / eau sur puits. • Équipements basse consommation pour une habitation éco-responsable. Ne manquez pas cette occasion unique de construire votre maison idéale dans l’un des quartiers les plus prisés de Colmar. Honoraires d'agence à la charge du vendeur. Bien non soumis au DPE. Les informations sur les risques auxquels ce bien est exposé, y compris l'obligation légale de débroussaillement, sont disponibles sur le site Géorisques : http://www.georisques.gouv.fr. La présente annonce immobilière a été rédigée sous la responsabilité éditoriale de Mme Agathe Schmitt mandataire indépendant en immobilier (sans détention de fonds), agent commercial de la SAS I@D France immatriculé au RSAC de Mulhouse sous le numéro 934078221, titulaire de la carte de démarchage immobilier pour le compte de la société I@D France SAS.
À proximité
Recherche des commodités à proximité...
Détails de l'annonce
Localisation
Ville
Colmar
Pays
FR
Chauffage et diagnostics
Diagnostic de performance énergétique (DPE)
a
b
c
d
e
f
g
Indice d'émission de gaz à effet de serre (GES)
a
b
c
d
e
f
g
