Type
Bien immobilierTarif
729 000 €Chambres
4Salles de bain
0Vente Maison traditionnelle 7 pièces
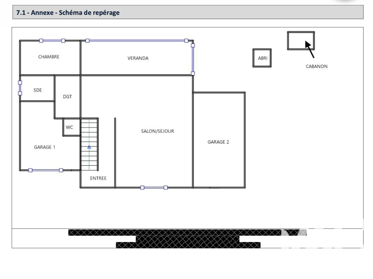
Iad France - Virginie Perals vous propose : LA ROCHELLE – QUARTIER LA TROMPETTE – MAISON FAMILIALE AVEC JARDIN PISCINABLE, VÉRANDA ET DOUBLE GARAGE Composée de 4 chambres, dont une suite parentale de plain-pied, 2 salles d’eau, 2 WC, ainsi qu’un vaste dressing. Le salon chaleureux, équipé d’une cheminée avec insert, s’ouvre sur une grande véranda baignée de lumière accueillant une spacieuse cuisine dînatoire. L’ensemble donne accès à une terrasse et à un jardin arboré, piscinable, exposé sud-est. La maison dispose également de 2 garages permettant de stationner voitures, vélos et matériel de loisirs. Les points forts : – Quartier très recherché, familial, centre-ville à pied, vélo – Rénovation récente (Isolation par l’extérieur, toiture, climatisation réversible, insert, salle d'eau. ) Quelques travaux nécessaires à l'étage (sols et portes des 3 chambres du haut) ainsi que changement de chaudière seront à envisager. Un bien rare sur le secteur, parfait pour une vie familiale, dans un environnement calme et privilégié. Disponibilité de la maison fin été 2026. Honoraires d'agence à la charge du vendeur. Information d'affichage énergétique sur ce bien : classe ENERGIE D indice 172 et classe CLIMAT D indice 32. Les informations sur les risques auxquels ce bien est exposé, y compris l'obligation légale de débroussaillement, sont disponibles sur le site Géorisques : http://www.georisques.gouv.fr. La présente annonce immobilière a été rédigée sous la responsabilité éditoriale de Mme Virginie Perals mandataire indépendant en immobilier (sans détention de fonds), agent commercial de la SAS I@D France immatriculé au RSAC de La Rochelle sous le numéro 789605201, titulaire de la carte de démarchage immobilier pour le compte de la société I@D France SAS.
À proximité
Recherche des commodités à proximité...
Détails de l'annonce
Localisation
Ville
La Rochelle
Pays
FR
Diagnostics / Énergie
Diagnostic DPE
172
Diagnostic GES
32
Surfaces / Pièces / Composition
Nombre d’étages
2
Chauffage et diagnostics
Diagnostic de performance énergétique (DPE)
a
b
c
d
e
f
g
Indice d'émission de gaz à effet de serre (GES)
a
b
c
d
e
f
g
