Type
Bien immobilierTarif
329 000 €Chambres
2Salles de bain
0Vente Appartement 3 pièces
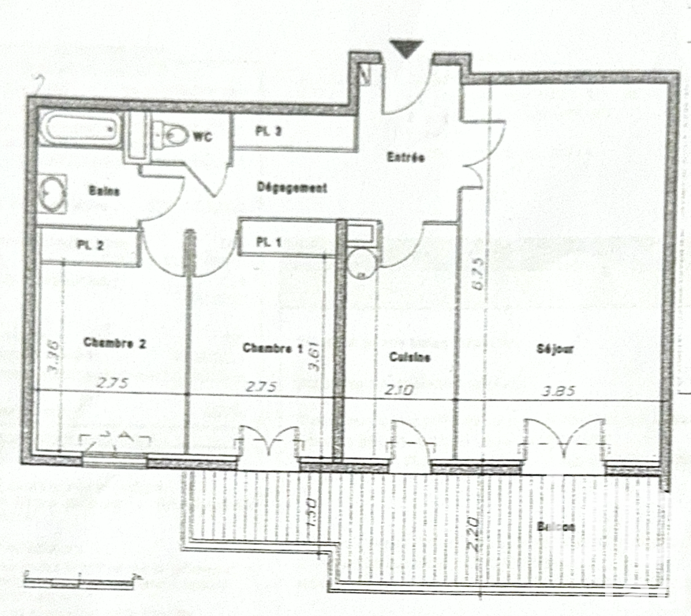
Iad France - Tiffany Segarra vous propose : Cannes – Limite La Roquette-sur-Siagne | T3 lumineux avec terrasse, piscine & garage | Quartier l’Abadie À la lisière de Cannes et de La Roquette-sur-Siagne, dans un environnement résidentiel, découvrez ce superbe 3 pièces de 72 m², niché au calme absolu au sein d’une résidence récente et sécurisée avec piscine. Un espace de vie généreux avec vue sur la pinède Dès l’entrée, vous serez séduit par sa magnifique pièce de vie de 35 m², aux volumes confortables et à l’agencement moderne avec cuisine ouverte. L’ensemble s’ouvre sur une belle terrasse de 15 m², exposée ouest, sans vis-à-vis, offrant une vue dégagée sur la pinède et les collines du Tanneron — un véritable prolongement de l’espace intérieur pour profiter des couchers de soleil en toute tranquillité. Un espace nuit fonctionnel L’appartement propose : •Deux chambres confortables •Une salle d’eau contemporaine •Un WC indépendant Un garage fermé complète ce bien, un atout précieux sur le secteur. Possibilité d'acquérir en sus un second garage et une place de parking extérieur. Piscine dans la résidence pour vos moments de détente, proximité immédiate des commerces, écoles et transports : ici, tout est réuni pour une vie pratique et sereine. Un bien rare alliant calme, luminosité et qualité de vie, aux portes de Cannes. Contactez-moi dès maintenant pour organiser une visite. La presente annonce immobiliere vise 2 lots situés dans une copropriété de 193 lots au total et ne faisant l'objet d'aucune procédure en cours citée à l'article L. 721-1 du code de la construction et de l'habitation. Montant moyen mensuel de charges déclaré par le vendeur : 181.33€ par mois (soit 2176 € annuel). Honoraires d'agence à la charge du vendeur. Information d'affichage énergétique sur ce bien : classe ENERGIE B indice 93 et classe CLIMAT A indice 2. Les informations sur les risques auxquels ce bien est exposé, y compris l'obligation légale de débroussaillement, sont disponibles sur le site Géorisques : http://www.georisques.gouv.fr. La présente annonce immobilière a été rédigée sous la responsabilité éditoriale de Mme Tiffany Segarra mandataire indépendant en immobilier (sans détention de fonds), agent commercial de la SAS I@D France immatriculé au RSAC de Grasse sous le numéro 790723829, titulaire de la carte de démarchage immobilier pour le compte de la société I@D France SAS.
À proximité
Recherche des commodités à proximité...
Détails de l'annonce
Localisation
Ville
Cannes
Pays
FR
Diagnostics / Énergie
Diagnostic DPE
93
Diagnostic GES
2
Surfaces / Pièces / Composition
Nombre d’étages
3
Étage
2
Chauffage et diagnostics
Diagnostic de performance énergétique (DPE)
a
b
c
d
e
f
g
Indice d'émission de gaz à effet de serre (GES)
a
b
c
d
e
f
g
