Type
Bien immobilierTarif
171 000 €Chambres
1Salles de bain
0Vente appartement 2 pièces
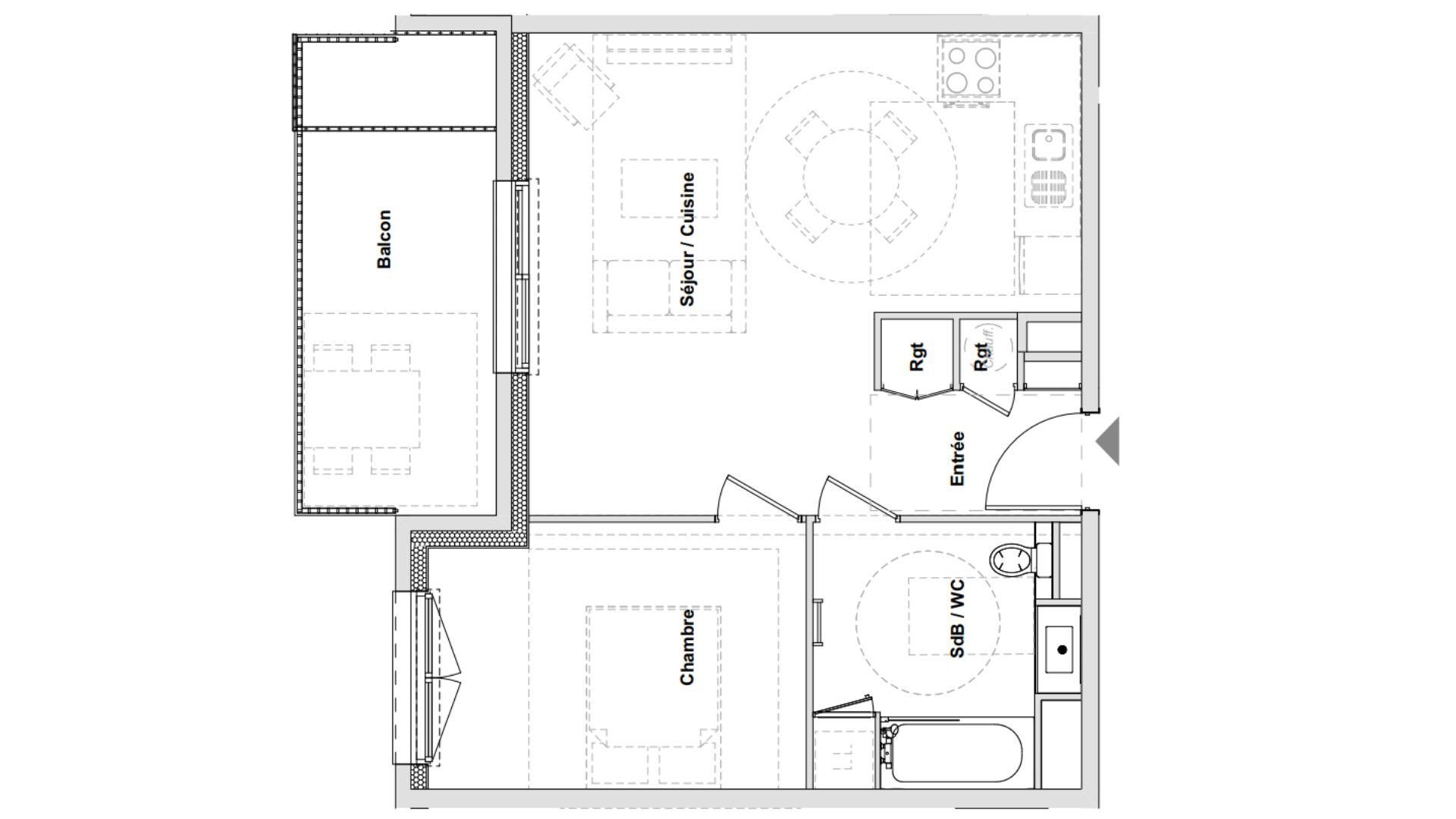
Iad France - Sarah Rozière (06 99 86 19 42) vous propose : Appartement T2 avec balcon à Riom. Située au cOEur de l’écoquartier de l’Ambène, dans un environnement moderne et verdoyant, la résidence contemporaine Les Rives de l’Ambène conjugue élégance architecturale et confort de vie. À proximité des commerces, des transports, des bassins de vie et des espaces naturels, cette adresse offre un cadre paisible et qualitatif à seulement quelques minutes du centre de Riom et de Clermont-Ferrand. Disponible 2027. Un appartement raffiné : Situé au 3 ème étage, cet appartement T2 de 46 m² environ habitables se prolonge par un balcon de 10 m² environ. - Séjour / cuisine de 24 m² environ. - Une chambre confortable. - Salle de bains moderne. De belles prestations : - Chauffage et production d’eau chaude via système collectif. - Menuiseries extérieures avec double vitrage isolant, volets roulants électriques. - Résidence sécurisée avec visiophone, contrôle d’accès Vigik et ascenseur. - Locaux vélos sécurisés, espaces paysagers, sous-sols aménagés. L’art de vivre aux Rives de l’Ambène : - À deux pas des commerces et services du quartier. - À proximité des axes majeurs vers Clermont-Ferrand. - Environnement paisible, moderne et parfaitement desservi. - Accès rapide aux zones d’activités, écoles et transports. N’hésitez pas à me contacter pour plus d’informations ou pour un accompagnement sur mesure. Honoraires d’agence à la charge du vendeur. Bien non soumis au DPE. Les informations sur les risques auxquels ce bien est exposé sont disponibles sur le site Géorisques : www.georisques.gouv.fr. La présente annonce immobilière a été rédigée sous la responsabilité éditoriale de Mlle Sarah Rozière EI (ID 83696), mandataire indépendant en immobilier (sans détention de fonds), agent commercial de la SAS I@D France immatriculé au RSAC de Clermont-Ferrand sous le numéro 978616993, titulaire de la carte de démarchage immobilier pour le compte de la société I@D France SAS. Retrouvez tous nos biens sur notre site internet. www.iadfrance.fr.
À proximité
Recherche des commodités à proximité...
Détails de l'annonce
Localisation
Ville
Riom
Pays
FR
Surfaces / Pièces / Composition
Nombre d’étages
3
Étage
3
Chauffage et diagnostics
Diagnostic de performance énergétique (DPE)
a
b
c
d
e
f
g
Indice d'émission de gaz à effet de serre (GES)
a
b
c
d
e
f
g
