Type
Bien immobilierTarif
382 720 €Chambres
3Salles de bain
0Vente Maison/villa 4 pièces
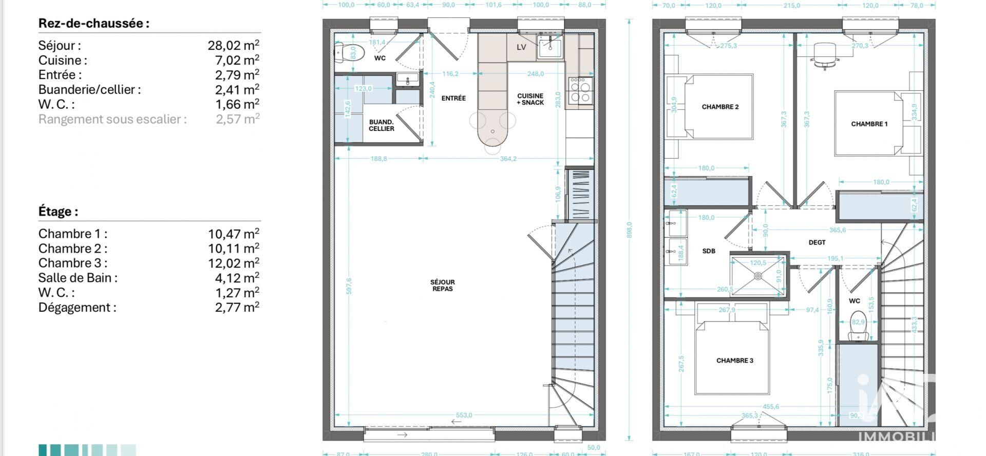
Iad France - Inès Querry (06 40 72 71 71) vous propose : Le Clos du Banégon – Lot n°3 Fayence – Ancienne Voie Ferrée Maison neuve 4 pièces avec jardin – frais de notaire avantageux Au cOEur d’un environnement résidentiel recherche, a deux pas du village de Fayence, découvrez cette maison neuve de 4 pièces, proposée en cours de construction au sein du programme intimiste Le Clos du Banégon, compose de seulement quelques logements. Cette maison mitoyenne en duplex développe une surface de plancher de 85 m² environ, parfaitement pensée pour un confort de vie moderne et fonctionnel, avec un jardin privatif d’environ 60 m² environ et un terrain total de 147 m² environ. Au rez-de-chaussée Belle pièce de vie lumineuse avec sejour et cuisine ouverte Grande baie vitrée coulissante de 2,80 m ouvrant sur le jardin Entrée avec rangements WC indépendant Buanderie / cellier avec rangements A l’étage Trois chambres confortables Salle de bains contemporaine (douche 120 x 90, double vasque) WC indépendant Dégagement optimise Les prestations ont été pensées pour allier esthétique, confort et durabilité Escalier design a marches balancées Rangements intégrés Volumes bien équilibrés Architecture contemporaine parfaitement intégrée a son environnement Cette maison conviendra parfaitement A une famille ou a des primo-accédants, grace a une conception fonctionnelle, des frais de notaire avantageux et les garanties du neuf Ou a un investissement patrimonial securisé, dans un secteur recherche de l’arrière-pays varois Prix de vente 382 720 euros frais d’agence inclus Fayence – secteur calme et résidentiel, a proximité des commerces, écoles et axes principaux. Honoraires d’agence à la charge du vendeur. Bien non soumis au DPE. Les informations sur les risques auxquels ce bien est exposé sont disponibles sur le site Géorisques : www.georisques.gouv.fr. La présente annonce immobilière a été rédigée sous la responsabilité éditoriale de Mlle Inès Querry EI (ID 85184), mandataire indépendant en immobilier (sans détention de fonds), agent commercial de la SAS I@D France immatriculé au RSAC de Draguignan sous le numéro 419704796, titulaire de la carte de démarchage immobilier pour le compte de la société I@D France SAS. Retrouvez tous nos biens sur notre site internet. www.iadfrance.fr.
Ce mois
Cette annonce est récente
À proximité
Recherche des commodités à proximité...
Détails de l'annonce
Localisation
Ville
Fayence
Pays
FR
Chauffage et diagnostics
Diagnostic de performance énergétique (DPE)
a
b
c
d
e
f
g
Indice d'émission de gaz à effet de serre (GES)
a
b
c
d
e
f
g
