Type
Bien immobilierTarif
150 000 €Chambres
1Salles de bain
0Vente Appartement 2 pièces
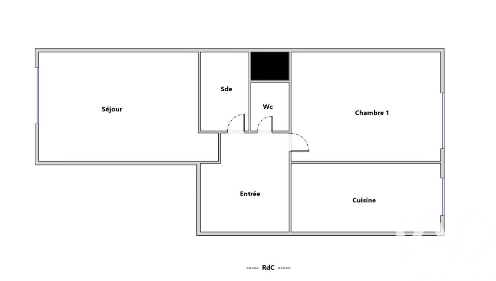
Iad France - Ophelie FLAMENT vous propose : Appartement fonctionnel idéal premier achat ou investissement locatif Situé au Pecq, à 15-20 minutes à pied de la gare de Marly-le-Roi (ligne L), cet appartement se trouve au sein d’une résidence sécurisée avec gardien, et constitue une belle opportunité pour un premier achat ou un projet d’investissement locatif. Les commerces se trouvent au pied de l’immeuble, ainsi que les bus pour la gare de Marly ou pour le RER A Le Vesinet-Le Pecq, offrant un quotidien pratique et confortable. Il se compose d’une grande entrée offrant la possibilité d’aménager un espace bureau, d’une cuisine indépendante, d’un séjour agréable, d’une chambre confortable, d’une salle de douche et de toilettes séparées. L’agencement est fonctionnel et permet d’optimiser facilement chaque espace. Quelques travaux de rafraîchissement sont à prévoir laissant la possibilité de personnaliser le bien selon vos envies et vos besoins. L'appartement propose en complément une cave et une place de parking extérieure. Les charges comprennent le chauffage, l'eau chaude, l'eau froide, l'entretien de la copropriété, etc. Un appartement au fort potentiel, bien situé et pratique au quotidien, idéal pour se lancer dans un premier projet immobilier ou pour développer un patrimoine locatif. À visiter sans tarder ! La présente annonce est soumise à la vente Interactive. La vente interactive permet aux acquéreurs de proposer des offres à partir d'un prix de départ (150 000 €). Le vendeur peut contresigner à tout moment, toute offre d'achat dont le prix et les conditions lui conviennent. Il n'est contraint par aucune offre d'achat, quel que soit le montant de celle-ci. La presente annonce immobiliere vise 3 lots situés dans une copropriété de 1224 lots au total et ne faisant l'objet d'aucune procédure en cours citée à l'article L. 721-1 du code de la construction et de l'habitation. Montant moyen mensuel de charges déclaré par le vendeur : 190€ par mois (soit 2280 € annuel). Honoraires d'agence à la charge du vendeur. Information d'affichage énergétique sur ce bien : classe ENERGIE E indice 282 et classe CLIMAT E indice 61. Les informations sur les risques auxquels ce bien est exposé, y compris l'obligation légale de débroussaillement, sont disponibles sur le site Géorisques : http://www.georisques.gouv.fr. La présente annonce immobilière a été rédigée sous la responsabilité éditoriale de Mme Ophelie FLAMENT mandataire indépendant en immobilier (sans détention de fonds), agent commercial de la SAS I@D France immatriculé au RSAC de Versailles sous le numéro 892842733, titulaire de la carte de démarchage immobilier pour le compte de la société I@D France SAS.
À proximité
Recherche des commodités à proximité...
Détails de l'annonce
Localisation
Ville
Le Pecq
Pays
FR
Diagnostics / Énergie
Diagnostic DPE
282
Diagnostic GES
61
Surfaces / Pièces / Composition
Nombre d’étages
14
Chauffage et diagnostics
Diagnostic de performance énergétique (DPE)
a
b
c
d
e
f
g
Indice d'émission de gaz à effet de serre (GES)
a
b
c
d
e
f
g
