Trouver...

Language: FR

Devise: EUR

Vente Maison de ville 4 pièces

Publié le 20 March 2026
Type
Bien immobilier
Tarif
230 000 €
Chambres
3
Salles de bain
0

Vente Maison de ville 4 pièces

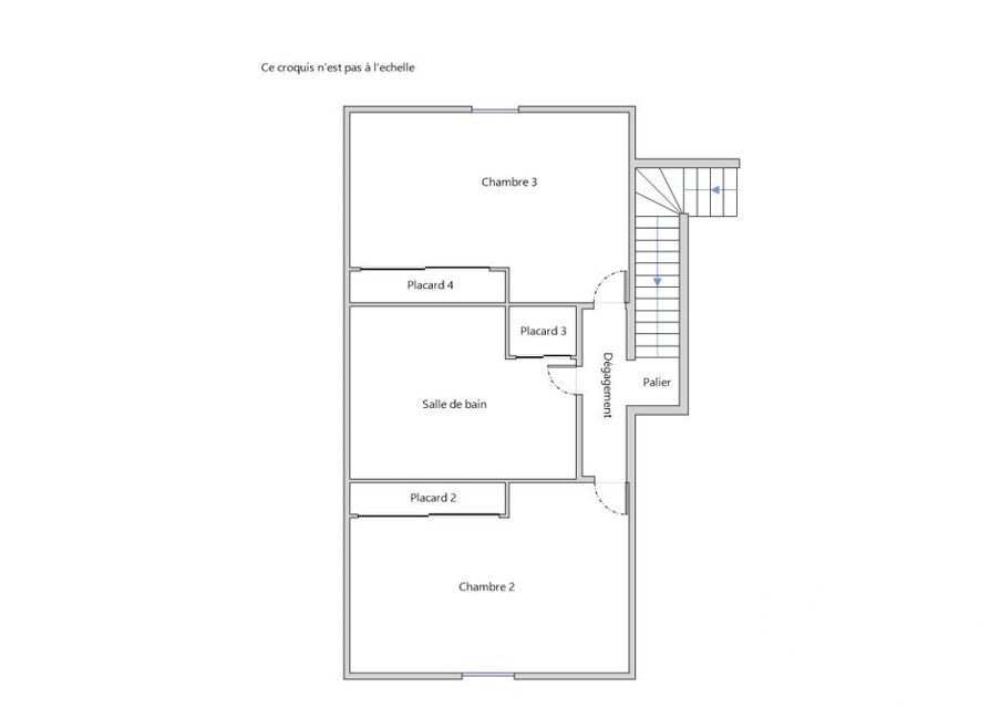
Iad France - Celine Tardieu vous propose : Garons, à 10mn de Nîmes, 30mn de la mer et 1 / 4 d'heure de la gare TGV de Manduel. Maison de ville de 2010 construite sur vide-sanitaires, d'une surface de 96 m² avec terrasse de 25 m². Au RDC : séjour lumineux de 43 m² ouvrant sur la terrasse, avec cuisine ouverte, cellier, chambre, salle d’eau / WC. À l'étage : 2 chambres, salle de bain avec 2ᵉ WC. Stationnement privatif, résidence sécurisée avec portail et interphone. Pour votre confort : aucun travaux, fermeture des volets centralisée, clim réversible, double vitrage, adoucisseur, excellente performance énergétique. L'espace de vie, une chambre, une salle d'eau et un WC sont de plain-pied. Un bien lumineux, fonctionnel et idéalement situé à deux pas des commerces. Inter agence avec plaisir. Honoraires d'agence à la charge du vendeur. Information d'affichage énergétique sur ce bien : classe ENERGIE B indice 105 et classe CLIMAT A indice 3. Les informations sur les risques auxquels ce bien est exposé, y compris l'obligation légale de débroussaillement, sont disponibles sur le site Géorisques : http://www.georisques.gouv.fr. La présente annonce immobilière a été rédigée sous la responsabilité éditoriale de Mme Celine Tardieu mandataire indépendant en immobilier (sans détention de fonds), agent commercial de la SAS I@D France immatriculé au RSAC de NIMES sous le numéro 878665488, titulaire de la carte de démarchage immobilier pour le compte de la société I@D France SAS.
Cette semaine Cette annonce est récente

À proximité

Recherche des commodités à proximité...

Détails de l'annonce

Localisation

Ville
Garons
Pays
FR

Diagnostics / Énergie

Diagnostic DPE
105
Diagnostic GES
3

Surfaces / Pièces / Composition

Nombre d’étages
2

Chauffage et diagnostics

Diagnostic de performance énergétique (DPE)
a
b
c
d
e
f
g
Indice d'émission de gaz à effet de serre (GES)
a
b
c
d
e
f
g
Rappelez-moi