Trouver...

Language: FR

Devise: EUR

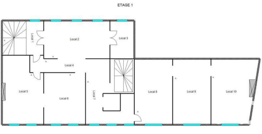
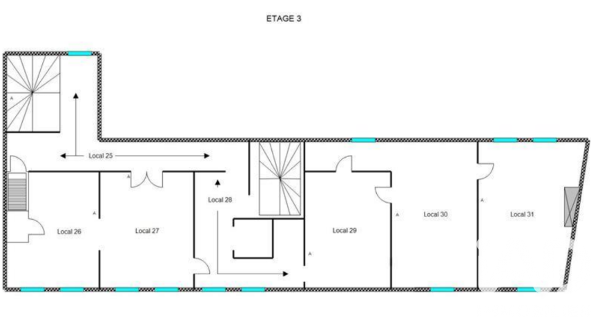
Vente Immeuble 502 m²

Publié le 19 March 2026
Type
Bien immobilier
Tarif
315 000 €
Chambres
0
Salles de bain
0

Vente Immeuble 502 m²

Iad France - Julien Pagniez vous propose : Nouveauté : Opportunité incroyable, idéale pour Investisseurs, A l'entrée du Centre Ville de Cambrai (1 min à pied de la place Aristide Briand), Je vous propose un Immeuble d'exception de 502 m² sur 3 étages, à rénover entièrement et à usage d'habitation ou commercial. Ce bâtiment historique se compose de la manière suivante : Rez-de-chaussée : entrée commune (3 étages + accès PMR Banque, copropriété bénévole existante) Etage 1 : 180 m² Etage 2 : 178 m² Etage 3 : 143 m² 1 Escalier allant du rez-de-chaussée aux 3 étages et 1 Escalier allant du 1er au 2 autres étages ! Gare, Station de Bus, Navette gratuite, tous les transports en commun seront à proximité à pied. Vous souhaitez créer plusieurs logements, des bureaux, les 2 peut-être, etc. Laissez place à votre imagination durant une belle visite ! La presente annonce immobiliere vise 1 lot situé dans une copropriété de 2 lots au total et ne faisant l'objet d'aucune procédure en cours citée à l'article L. 721-1 du code de la construction et de l'habitation. Montant moyen mensuel de charges déclaré par le vendeur : 0€ par mois (soit 0 € annuel). Honoraires d'agence à la charge du vendeur. Bien non soumis au DPE. Les informations sur les risques auxquels ce bien est exposé, y compris l'obligation légale de débroussaillement, sont disponibles sur le site Géorisques : http://www.georisques.gouv.fr. La présente annonce immobilière a été rédigée sous la responsabilité éditoriale de M Julien Pagniez mandataire indépendant en immobilier (sans détention de fonds), agent commercial de la SAS I@D France immatriculé au RSAC de Douai sous le numéro 900211483, titulaire de la carte de démarchage immobilier pour le compte de la société I@D France SAS.
Nouveau Cette annonce est récente

À proximité

Recherche des commodités à proximité...

Détails de l'annonce

Localisation

Ville
Cambrai
Pays
FR

Surfaces / Pièces / Composition

Nombre d’étages
3

Chauffage et diagnostics

Diagnostic de performance énergétique (DPE)
a
b
c
d
e
f
g
Indice d'émission de gaz à effet de serre (GES)
a
b
c
d
e
f
g
Rappelez-moi