Type
Bien immobilierTarif
199 000 €Chambres
2Salles de bain
0Vente Appartement 3 pièces
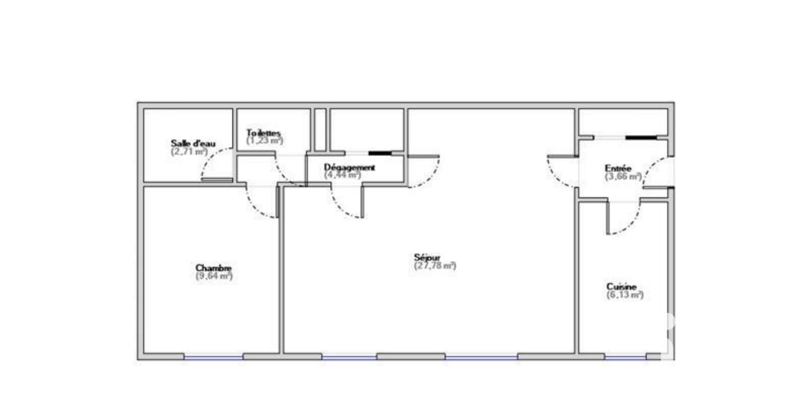
Iad France - Fatiha El Idrissi vous propose : Grand F2 avec double séjour situé dans un immeuble de 6 étages avec ASCENSEUR et GARDIEN, résidence de standing fermée et sécurisée, bel appartement au 5eme étage composé d'une entrée avec placard desservant un séjour / salle à mangé, une cuisine semi-ouverte, un dégagement avec rangements, 1 chambre (2eme possible), WC séparés et une salle d'eau + une cave. ___ CRÉTEIL VILLAGE / ÉGLISE à 2min, ___ Avenue Verdun, ___ Metro Créteil Université à 1km, (5min en TVM) ___ Gare RER A Saint-Maur Créteil à 1.4km, (7min en TVM) ___ Écoles / collège VICTOR HUGO à 300m, ___ Stationnement libre dans la résidence. ___ Taxe foncière 1500 ___ DOUBLE VITRAGE ___ EXPOSITION OUEST ___ Vue dégagée ___ DE NOMBREUX RANGEMENTS ___ A86 à 5 min,. ___ Conseiller disponible 7j / 7 La presente annonce immobiliere vise 2 lots situés dans une copropriété de 106 lots au total et ne faisant l'objet d'aucune procédure en cours citée à l'article L. 721-1 du code de la construction et de l'habitation. Montant moyen mensuel de charges déclaré par le vendeur : 300€ par mois (soit 3600 € annuel). Honoraires d'agence à la charge du vendeur. Information d'affichage énergétique sur ce bien : classe ENERGIE D indice 159 et classe CLIMAT D indice 48. Les informations sur les risques auxquels ce bien est exposé, y compris l'obligation légale de débroussaillement, sont disponibles sur le site Géorisques : http://www.georisques.gouv.fr. La présente annonce immobilière a été rédigée sous la responsabilité éditoriale de Mme Fatiha El Idrissi mandataire indépendant en immobilier (sans détention de fonds), agent commercial de la SAS I@D France immatriculé au RSAC de CRETEIL sous le numéro 410 896 633, titulaire de la carte de démarchage immobilier pour le compte de la société I@D France SAS.
À proximité
Recherche des commodités à proximité...
Détails de l'annonce
Localisation
Ville
Créteil
Pays
FR
Diagnostics / Énergie
Diagnostic DPE
159
Diagnostic GES
48
Surfaces / Pièces / Composition
Nombre d’étages
6
Chauffage et diagnostics
Diagnostic de performance énergétique (DPE)
a
b
c
d
e
f
g
Indice d'émission de gaz à effet de serre (GES)
a
b
c
d
e
f
g
