Type
Bien immobilierTarif
110 999 €Chambres
4Salles de bain
0Vente Maison/villa 6 pièces
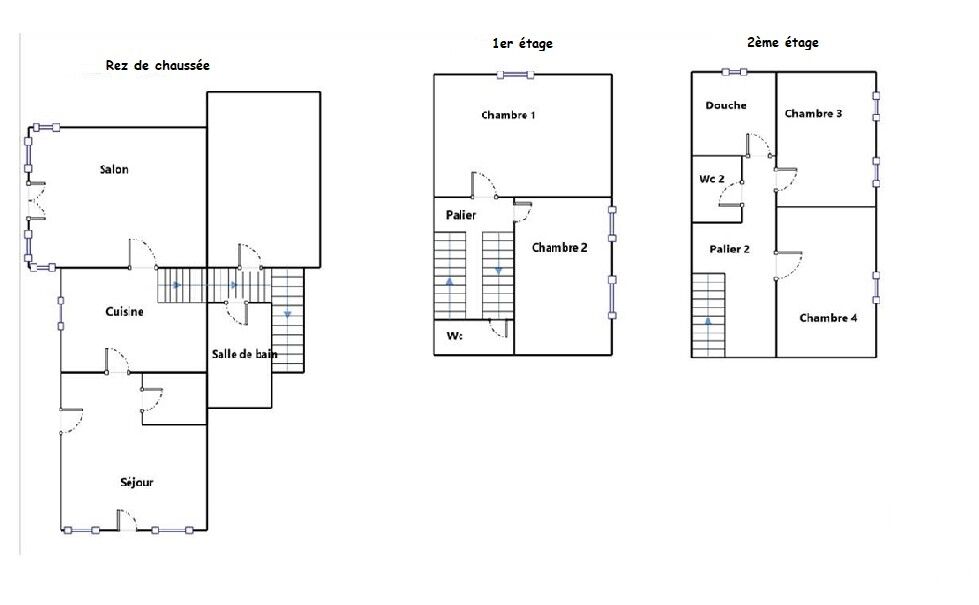
Iad France - Ludivine Jupille vous propose : Maison atypique à Arces-Dilo – DPE D - 140 m² habitables - Grange attenante 83 m² - Jardin clos de 330 m² Cette maison de caractère offre un fort potentiel pour ceux qui recherchent un bien alliant habitation familiale et pouvant accueillir une activité professionnelle à domicile. Rez-de-chaussée : - Entrée par une pièce autrefois utilisée comme bureau professionnel, - Point d’eau à aménager, - Cuisine aménagée et équipée, - Grand salon lumineux avec cheminée, - Salle de bains située sous l’escalier. Étage : - 1er étage : * Deux grandes chambres avec placards intégrés * WC indépendant - 2ème étage (mansardé) : * Deux chambres supplémentaires * Salle d’eau * Second WC Extérieurs et dépendances : - Jardin clos, - Cave voûtée avec espace chaufferie, - Grange attenante comprenant : * Grand espace au sol * Mezzanine * Fosse (ancien garage automobile) * Possibilité d'agrandissement de la maison. Caractéristiques techniques : - Tout-à-l’égout, - Fenêtres double vitrage PVC au rez-de-chaussée, - Travaux de remise aux normes et modernisation à prévoir Une belle opportunité pour les amoureux des maisons de caractère, avec un fort potentiel d’aménagement et d’activité professionnelle à domicile. Localisation : 15 mn Migennes 15 mn Saint-Florentin 20 mn Villeneuve l'Archevêque (sortie A5) 30 mn Sens Honoraires d'agence à la charge du vendeur. Information d'affichage énergétique sur ce bien : classe ENERGIE D indice 245 et classe CLIMAT D indice 45. Les informations sur les risques auxquels ce bien est exposé, y compris l'obligation légale de débroussaillement, sont disponibles sur le site Géorisques : http://www.georisques.gouv.fr. La présente annonce immobilière a été rédigée sous la responsabilité éditoriale de Mme Ludivine Jupille mandataire indépendant en immobilier (sans détention de fonds), agent commercial de la SAS I@D France immatriculé au RSAC de SENS sous le numéro 921180139, titulaire de la carte de démarchage immobilier pour le compte de la société I@D France SAS.
À proximité
Recherche des commodités à proximité...
Détails de l'annonce
Localisation
Ville
Arces-Dilo
Pays
FR
Diagnostics / Énergie
Diagnostic DPE
245
Diagnostic GES
45
Surfaces / Pièces / Composition
Nombre d’étages
2
Chauffage et diagnostics
Diagnostic de performance énergétique (DPE)
a
b
c
d
e
f
g
Indice d'émission de gaz à effet de serre (GES)
a
b
c
d
e
f
g
