Type
Bien immobilierTarif
179 000 €Chambres
1Salles de bain
0Vente Maison/villa 3 pièces
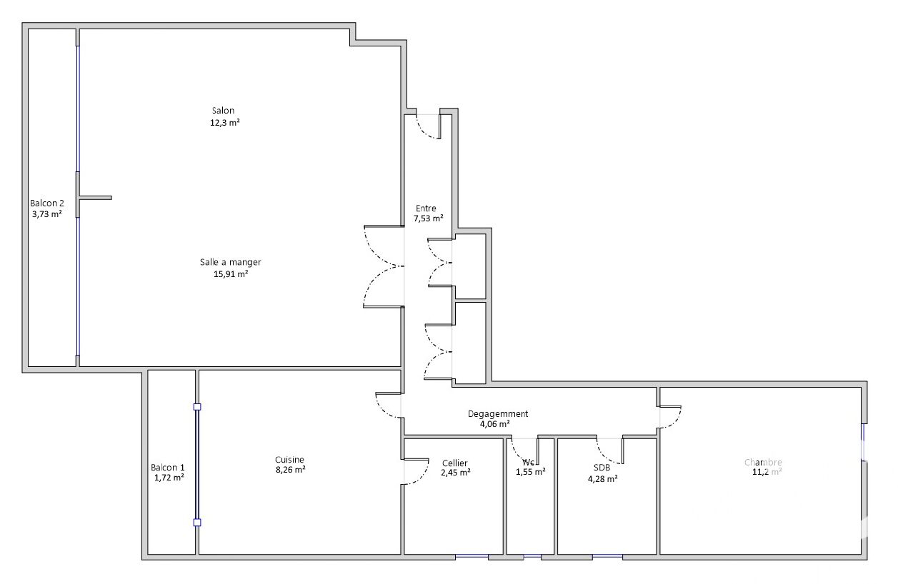
Iad France - Jean-Christophe Segault vous propose : Superbe Appartement de 3 pièces avec Balcons et Vue Dégagée à La Rochette Situé au cOEur de La Rochette, cet appartement de standing rénové offre un espace de vie lumineux et fonctionnel, idéal pour les familles ou les personnes en quête de confort et de tranquillité. Les 67 m² de cet appartement sont intelligemment agencés pour offrir un maximum de confort. Vous bénéficierez d'une chambre spacieuse, d'une cuisine équipée et aménagée, d'un salon convivial ainsi que d'une salle de bain moderne et d'un WC séparé. Les deux balcons offrent une vue dégagée sur les environs, parfaits pour profiter des beaux jours et prendre un bol d'air frais. L'immeuble de 4 étages, avec un appartement au premier niveau, est équipé d'un ascenseur pour un accès facilité. L'appartement est doté de plusieurs équipements de confort tels que la fibre optique et un système de chauffage Collectif. La résidence est idéalement située à proximité des commerces, des écoles et des transports en commun, offrant ainsi un cadre de vie pratique et agréable. De plus, les deux places de parking garantissent un stationnement sécurisé, la cave en sous-sol et du rangement supplémentaire. Ne laissez pas passer l'opportunité de devenir propriétaire de ce bel appartement à La Rochette. Visite sur RDV – Pièce d’identité requise (Art. L.561.5 CMF). Contactez moi dès maintenant pour organiser une visite et laissez-vous séduire par ce bien d'exception. La presente annonce immobiliere vise 4 lots situés dans une copropriété de 51 lots au total et ne faisant l'objet d'aucune procédure en cours citée à l'article L. 721-1 du code de la construction et de l'habitation. Montant moyen mensuel de charges déclaré par le vendeur : 166.67€ par mois (soit 2000 € annuel). Honoraires d'agence à la charge du vendeur. Information d'affichage énergétique sur ce bien : classe ENERGIE E indice 285 et classe CLIMAT E indice 62. Les informations sur les risques auxquels ce bien est exposé, y compris l'obligation légale de débroussaillement, sont disponibles sur le site Géorisques : http://www.georisques.gouv.fr. La présente annonce immobilière a été rédigée sous la responsabilité éditoriale de M Jean-Christophe Segault mandataire indépendant en immobilier (sans détention de fonds), agent commercial de la SAS I@D France immatriculé au RSAC de Orléans sous le numéro 531345908, titulaire de la carte de démarchage immobilier pour le compte de la société I@D France SAS.
Ce mois
Cette annonce est récente
À proximité
Recherche des commodités à proximité...
Détails de l'annonce
Localisation
Ville
La Rochette
Pays
FR
Diagnostics / Énergie
Diagnostic DPE
285
Diagnostic GES
62
Chauffage et diagnostics
Diagnostic de performance énergétique (DPE)
a
b
c
d
e
f
g
Indice d'émission de gaz à effet de serre (GES)
a
b
c
d
e
f
g
