Type
Bien immobilierTarif
69 000 €Chambres
2Salles de bain
0Vente Appartement 3 pièces
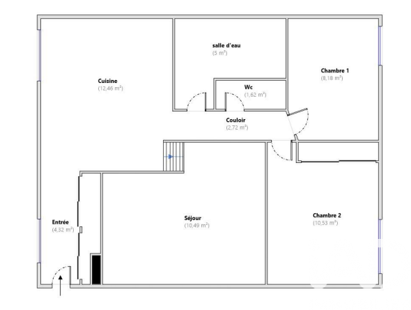
Iad France - Sylvie Clement vous propose : Découvrez ce charmant appartement loué de trois pièces, offrant un cadre de vie agréable, idéal pour un investissement locatif. Situé au rez-de-chaussée d’une jolie copropriété en pierre, ce bien bénéficie d’une entrée indépendante, un véritable atout. D’une superficie d’environ 56 m², l’appartement se compose d'une entrée avec placard, d’une cuisine aménagée et équipée ouverte sur le salon, de deux chambres, dont une avec placard, ainsi que d’une salle d’eau et de toilettes séparées. Le stationnement est gratuit dans la rue, facilitant la vie des occupants. Actuellement loué 600 € par mois, auxquels s’ajoutent 60 € de charges, ce bien constitue une opportunité intéressante pour un investisseur à la recherche d’un placement sécurisé. Envie d’en savoir plus ou de le découvrir ? Contactez-moi dès maintenant pour organiser une visite. La presente annonce immobiliere vise 2 lots situés dans une copropriété de 57 lots au total et ne faisant l'objet d'aucune procédure en cours citée à l'article L. 721-1 du code de la construction et de l'habitation. Montant moyen mensuel de charges déclaré par le vendeur : 188€ par mois (soit 2256 € annuel). Honoraires d'agence à la charge du vendeur. Information d'affichage énergétique sur ce bien : classe ENERGIE E indice 284 et classe CLIMAT E indice 61. Les informations sur les risques auxquels ce bien est exposé, y compris l'obligation légale de débroussaillement, sont disponibles sur le site Géorisques : http://www.georisques.gouv.fr. La présente annonce immobilière a été rédigée sous la responsabilité éditoriale de Mme Sylvie Clement mandataire indépendant en immobilier (sans détention de fonds), agent commercial de la SAS I@D France immatriculé au RSAC de CHÂLONS-EN-CHAMPAGNE sous le numéro 894026251, titulaire de la carte de démarchage immobilier pour le compte de la société I@D France SAS.
Cette semaine
Cette annonce est récente
À proximité
Recherche des commodités à proximité...
Détails de l'annonce
Localisation
Ville
Châlons-en-Champagne
Pays
FR
Diagnostics / Énergie
Diagnostic DPE
284
Diagnostic GES
61
Surfaces / Pièces / Composition
Nombre d’étages
Chauffage et diagnostics
Diagnostic de performance énergétique (DPE)
a
b
c
d
e
f
g
Indice d'émission de gaz à effet de serre (GES)
a
b
c
d
e
f
g
