Type
Bien immobilierTarif
515 000 €Chambres
3Salles de bain
0Vente Appartement 5 pièces
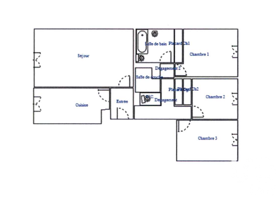
Iad France - Véronique Abela vous propose : LE CHESNAY-ROCQUENCOURT, DOMAINE DE ROCQUENCOURT. Superbe appartement en EXCELLENT ETAT de 5 pièces - 100 m² en étage élevé, d'où sa vue dégagée. Il comprend une grande cuisine de qualité Cuisinella entièrement équipée ainsi qu'un grand séjour / salle à manger donnant sur une large terrasse exposition Ouest. Le coin nuit dessert 1 salle de bain avec WC, 1 salle de douche, 1 WC indépendant, un couloir avec dressing et 3 chambres (dont 2 avec grand placard intégré) donnant sur une large terrasse exposition Est. Double vitrage, volets électriques dans toutes les pièces. Interphone avec visiophone. Une cave et 1 box avec porte motorisée et borne de recharge pour véhicule électrique en sous-sol sécurisé. La presente annonce immobiliere vise 3 lots situés dans une copropriété de 1500 lots au total et ne faisant l'objet d'aucune procédure en cours citée à l'article L. 721-1 du code de la construction et de l'habitation. Montant moyen mensuel de charges déclaré par le vendeur : 432€ par mois (soit 5184 € annuel). Honoraires d'agence à la charge du vendeur. Information d'affichage énergétique sur ce bien : classe ENERGIE D indice 175 et classe CLIMAT D indice 34. Les informations sur les risques auxquels ce bien est exposé, y compris l'obligation légale de débroussaillement, sont disponibles sur le site Géorisques : http://www.georisques.gouv.fr. La présente annonce immobilière a été rédigée sous la responsabilité éditoriale de Mme Véronique Abela mandataire indépendant en immobilier (sans détention de fonds), agent commercial de la SAS I@D France immatriculé au RSAC de VERSAILLES sous le numéro 947985164, titulaire de la carte de démarchage immobilier pour le compte de la société I@D France SAS.
Ce mois
Cette annonce est récente
À proximité
Recherche des commodités à proximité...
Détails de l'annonce
Localisation
Ville
Le Chesnay
Pays
FR
Diagnostics / Énergie
Diagnostic DPE
175
Diagnostic GES
34
Surfaces / Pièces / Composition
Nombre d’étages
5
Étage
4
Chauffage et diagnostics
Diagnostic de performance énergétique (DPE)
a
b
c
d
e
f
g
Indice d'émission de gaz à effet de serre (GES)
a
b
c
d
e
f
g
