Trouver...

Language: FR

Devise: EUR

Vente Maison traditionnelle 2 pièces

Publié le 26 December 2025
Type
Bien immobilier
Tarif
69 000 €
Chambres
1
Salles de bain
0

Vente Maison traditionnelle 2 pièces

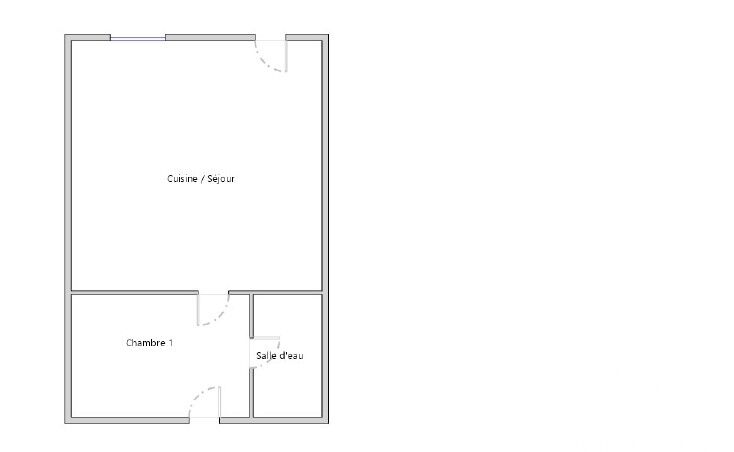
Iad France - Guy Mallet vous propose : maison deux pièces de plain-pied sans mitoyenneté comprenant : salle à manger de 26 m² avec coin cuisine et cheminée (insert), salle d'eau avec WC, chambre carrelée, terrasse avec barbecue, jardin clos arboré d'environ 550 m² environ sans vis à vis et petites dépendances sur l'arrière. Les plus : double vitrage, chauffage électrique, volets roulants, tableau électrique et ravalement refaits (pas d'amiante et pas d'anomalie électrique), toiture isolée et refaite à neuf, droit au puits, fibre disponible, tout à l'égout, taxe foncière de 290€. Grenier isolé aménageable (vélux posé et deux chambres possibles). Proche du centre ville de Coullons, idéal pour une résidence secondaire, un premier achat ou du locatif. Habitable de suite. Une visite s'impose ! Honoraires d'agence à la charge du vendeur. Bien non soumis au DPE. Les informations sur les risques auxquels ce bien est exposé, y compris l'obligation légale de débroussaillement, sont disponibles sur le site Géorisques : http://www.georisques.gouv.fr. La présente annonce immobilière a été rédigée sous la responsabilité éditoriale de M Guy Mallet mandataire indépendant en immobilier (sans détention de fonds), agent commercial de la SAS I@D France immatriculé au RSAC de ORLEANS sous le numéro 523 370 658, titulaire de la carte de démarchage immobilier pour le compte de la société I@D France SAS.

À proximité

Recherche des commodités à proximité...

Détails de l'annonce

Localisation

Ville
Coullons
Pays
FR

Surfaces / Pièces / Composition

Nombre d’étages
2

Chauffage et diagnostics

Diagnostic de performance énergétique (DPE)
a
b
c
d
e
f
g
Indice d'émission de gaz à effet de serre (GES)
a
b
c
d
e
f
g
Rappelez-moi