Type
Bien immobilierTarif
270 000 €Chambres
2Salles de bain
0Vente Appartement 3 pièces
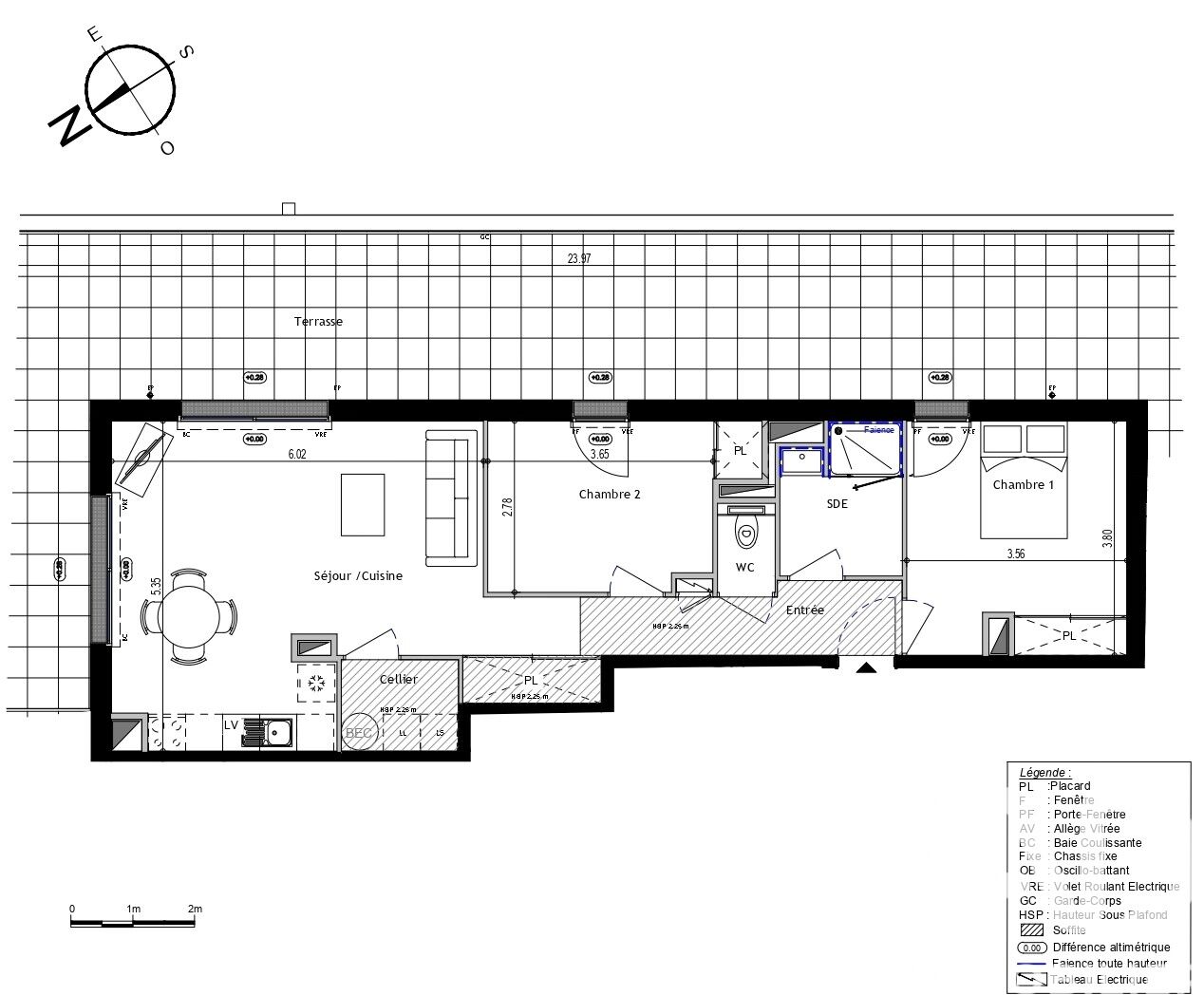
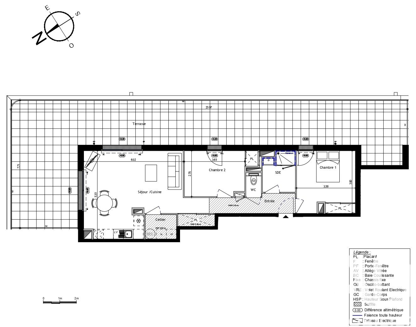
Iad France - Mathilde Leroux vous propose : APPARTEMENT - T3 - CENTRE MONTAIGU - 2EME & DERNIER ETAGE - TERRASSE - 3 STATIONNEMENTS Situé à proximité de toutes les commodités, venez découvrir ce T3 de 69 m² avec sa terrasse de 91,04 m² environ. Il comprend : une entrée, un séjour / cuisine, un cellier, deux chambres, une salle d'eau, et un WC. Trois stationnements aériens et un local à vélo complètent le lot. Résidence MONA LISA, idéale pour habiter ou investir ! FRAIS DE NOTAIRE REDUITS - NORMES RE2020 - VISITES SUR RDV. Mathilde Leroux - iad France, votre conseillère en immobilier sur Saint Hilaire de Clisson et alentours. Avis de valeur OFFERT. La presente annonce immobiliere vise 5 lots situés dans une copropriété de 73 lots au total et ne faisant l'objet d'aucune procédure en cours citée à l'article L. 721-1 du code de la construction et de l'habitation. Montant moyen mensuel de charges déclaré par le vendeur : 0€ par mois (soit 0 € annuel). Honoraires d'agence à la charge du vendeur. Information d'affichage énergétique sur ce bien : classe ENERGIE A indice 62 et classe CLIMAT A indice 2. Les informations sur les risques auxquels ce bien est exposé, y compris l'obligation légale de débroussaillement, sont disponibles sur le site Géorisques : http://www.georisques.gouv.fr. La présente annonce immobilière a été rédigée sous la responsabilité éditoriale de Mme Mathilde Leroux mandataire indépendant en immobilier (sans détention de fonds), agent commercial de la SAS I@D France immatriculé au RSAC de NANTES sous le numéro 990458747, titulaire de la carte de démarchage immobilier pour le compte de la société I@D France SAS.
Cette semaine
Cette annonce est récente
À proximité
Recherche des commodités à proximité...
Détails de l'annonce
Localisation
Ville
Montaigu
Pays
FR
Diagnostics / Énergie
Diagnostic DPE
64
Diagnostic GES
2
Surfaces / Pièces / Composition
Nombre d’étages
2
Étage
2
Chauffage et diagnostics
Diagnostic de performance énergétique (DPE)
a
b
c
d
e
f
g
Indice d'émission de gaz à effet de serre (GES)
a
b
c
d
e
f
g
