Vente Appartement 3 pièces
Type
Bien immobilierTarif
129 500 €Chambres
2Salles de bain
0Vente Appartement 3 pièces
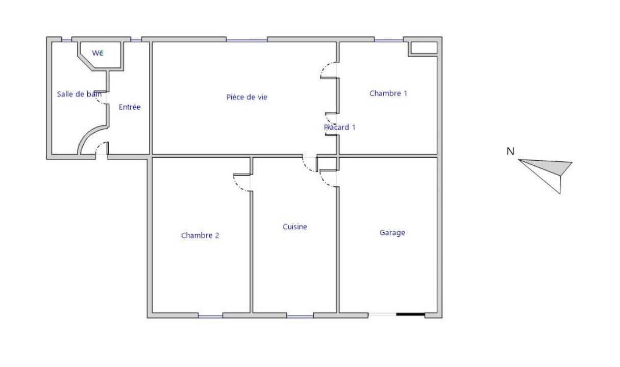
Iad France - Céline FERRIERES vous propose : Bressols (82710) – T3 lumineux avec terrasse, garage et cachet ancien – 75 m² À seulement 5 minutes du péage Sud, 10 minutes de Montauban et 35 minutes de Toulouse, ce beau T3 de 75 m² situé dans une petite copropriété de caractère séduit par son cachet authentique et ses espaces généreux. Un cadre de vie recherché Nichée dans une rue parallèle à la rue principale de Bressols, la résidence bénéficie d’un environnement calme tout en restant proche des commodités et des grands axes. Le secteur est en plein développement, porté par des projets d’envergure : arrivée de la LGV, nouveau centre hospitalier et aménagements urbains à venir. Le bien en détail 75 m² habitables : -Pièce de vie lumineuse avec tomette au sol et briquettes apparentes -2 grandes chambres d’environ 14 et 15 m² -Cuisine indépendante -Salle de bain + WC séparés -Terrasse / cour privative pour profiter des beaux jours -Garage fermé de 14 m² inclus Confort & performance énergétique : -Double vitrage sur toutes les ouvertures -La climatisation serait nécessaire pour un meilleur confort d’été - l’Isolation des murs est perfectible - Chauffage électrique à inertie et ballon d’eau chaude : système fonctionnel mais énergivore Occupation et conditions : -Bien vendu loué : Locataire sérieux en place depuis 2021 Bail renouvelé tacitement Loyer actuel : 620 € / mois À propos de la copropriété -Petite copropriété issue d’une division récente -Aucune charge actuelle et charges futures limitées -Fibre optique disponible -Raccordement au tout-à-l’égout Pourquoi ce bien ? Un T3 avec terrasse, garage et cachet ancien est rare sur le secteur. C’est un investissement idéal pour qui recherche : Un placement stable avec revenus locatifs immédiats Un bien à valoriser dans le temps grâce à son charme et son emplacement privilégié À visiter sans attendre sur rendez vous. La presente annonce immobiliere vise 1 lot situé dans une copropriété de 5 lots au total et ne faisant l'objet d'aucune procédure en cours citée à l'article L. 721-1 du code de la construction et de l'habitation. Montant moyen mensuel de charges déclaré par le vendeur : 0€ par mois (soit 0 € annuel). Honoraires d'agence à la charge du vendeur. Information d'affichage énergétique sur ce bien : classe ENERGIE F indice 353 et classe CLIMAT C indice 11. Les informations sur les risques auxquels ce bien est exposé, y compris l'obligation légale de débroussaillement, sont disponibles sur le site Géorisques : http://www.georisques.gouv.fr. La présente annonce immobilière a été rédigée sous la responsabilité éditoriale de Mme Céline FERRIERES mandataire indépendant en immobilier (sans détention de fonds), agent commercial de la SAS I@D France immatriculé au RSAC de montauban sous le numéro 892769969, titulaire de la carte de démarchage immobilier pour le compte de la société I@D France SAS.
Détails de l'annonce
Localisation
Ville
Bressols
Pays
FR
Diagnostics / Énergie
Diagnostic DPE
353
Diagnostic GES
11
Chauffage et diagnostics
Diagnostic de performance énergétique (DPE)
a
b
c
d
e
f
g
Indice d'émission de gaz à effet de serre (GES)
a
b
c
d
e
f
g
