Trouver...

Language: FR

Devise: EUR

Vente Appartement 3 pièces

Publié le 8 November 2025
Type
Bien immobilier
Tarif
288 000 €
Chambres
0
Salles de bain
0

Vente Appartement 3 pièces

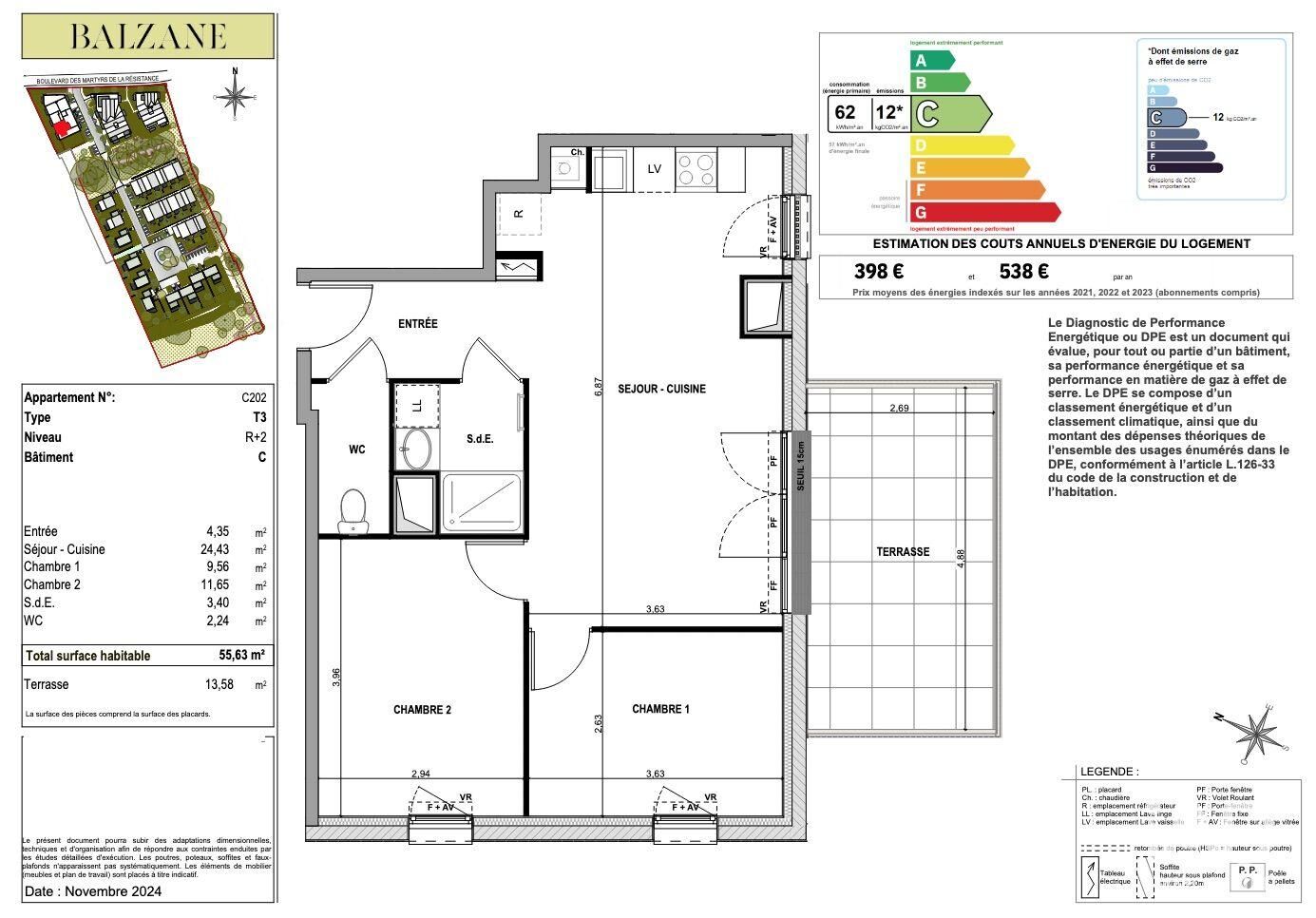
Iad France - Marc Franc (07 80 36 67 20) vous propose : === LIBRE IMMÉDIATEMENT - FRAIS NOTAIRE OFFERTS jusqu'au 31 mars 2026 === DERNIÈRE OPPORTUNITÉ - T3 - Résidence 'BALZANE' à COUËRON : VOTRE RÉSIDENCE PRINCIPALE OU SECONDAIRE PROCHE DE NANTES. Résidence « BALZANE », un emplacement d'exception, au coeur de l'agglomération NANTAISE, à proximité de la côte ATLANTIQUE, à 15 min du centre de Nantes sur la rive nord de la Loire, 5 min de la gare. - Appartement 3 pièces, 2 chambres, niveau R + 2. orientation Sud / Ouest,. contenance totale de 56 m² environ,. Terrasse de 14 m² environ,. 2 places de parking en sous-sol (lots secondaires),. frais de notaire estimés à 7200 euros en moyenne. Ne manquez pas de concrétiser votre rêve, profitez en famille de cette opportunité à COUËRON, commune qui conjugue charmes authentiques et douceur de vivre, riche de ses multiples services, nombreux commerces, complexe sportif, écoles, collège, lycée, service à la santé, un environnement idéal pour les amoureux de la nature et de la randonnée, sur un territoire aux atouts économiques et culturels attractifs. La résidence 'BALZANE', 61 logements individuels et collectifs, lumineux et confortables, à l'architecture élégante, dans un cadre préservé, orientée sur les rives de l'estuaire de la Loire. Autres logements encore disponibles : - maisons individuelles de 4 pièces, - de 87 à 96 m² environ, - jardin privatif, terrasse, - garage. Règlementation Environnementale RT 2012. Contactez-moi pour en savoir plus et réserver ! Honoraires d’agence à la charge du vendeur. Bien non soumis au DPE. Les informations sur les risques auxquels ce bien est exposé sont disponibles sur le site Géorisques : www.georisques.gouv.fr. La présente annonce immobilière a été rédigée sous la responsabilité éditoriale de M. Marc Franc EI (ID 83540), mandataire indépendant en immobilier (sans détention de fonds), agent commercial de la SAS I@D France immatriculé au RSAC de VANNES sous le numéro 931732952, titulaire de la carte de démarchage immobilier pour le compte de la société I@D France SAS. Retrouvez tous nos biens sur notre site internet. www.iadfrance.fr.

À proximité

Recherche des commodités à proximité...

Détails de l'annonce

Localisation

Ville
Couëron
Pays
FR

Surfaces / Pièces / Composition

Nombre d’étages

Chauffage et diagnostics

Diagnostic de performance énergétique (DPE)
a
b
c
d
e
f
g
Indice d'émission de gaz à effet de serre (GES)
a
b
c
d
e
f
g
Rappelez-moi