Type
Bien immobilierTarif
528 500 €Chambres
2Salles de bain
0Vente appartement 3 pièces
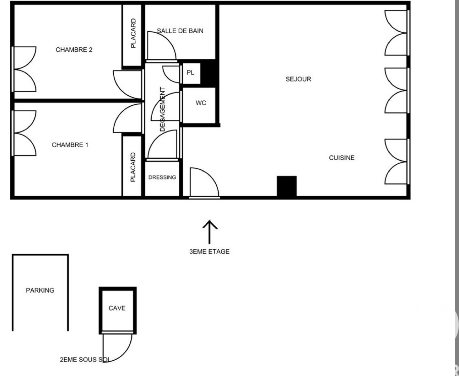
Iad France - Stéphane Collignon vous propose : Appartement 3 pièces de 64 m²- Courbevoie, quartier recherché de Bécon. Idéalement situé face au parc de Bécon, cet appartement lumineux se trouve au 3ème étage sans vis à vis avec ascenseur dans une résidence sécurisée de 4 étages datant de 1980. L'agencement est fonctionnel et agréable. Vous apprécierez le balcon filant sur le salon / séjour lumineux avec sa cuisine équipée ouverte et moderne, deux chambres, une salle de bain et un W-C indépendant. L'appartement est en très bon état général permettant une installation immédiate sans travaux. Pour votre confort, une place de parking en sous-sol et une cave complètent ce bien. Cet appartement offre un cadre de vie idéal avec à proximité immédiate des commerces, des écoles, des transports en commun et des espaces verts. La presente annonce immobiliere vise 3 lots situés dans une copropriété de 175 lots au total et ne faisant l'objet d'aucune procédure en cours citée à l'article L. 721-1 du code de la construction et de l'habitation. Montant moyen mensuel de charges déclaré par le vendeur : 200€ par mois (soit 2400 € annuel). Honoraires d'agence à la charge du vendeur. Information d'affichage énergétique sur ce bien : classe ENERGIE C indice 135 et classe CLIMAT A indice 5. Les informations sur les risques auxquels ce bien est exposé, y compris l'obligation légale de débroussaillement, sont disponibles sur le site Géorisques : http://www.georisques.gouv.fr. La présente annonce immobilière a été rédigée sous la responsabilité éditoriale de M Stéphane Collignon mandataire indépendant en immobilier (sans détention de fonds), agent commercial de la SAS I@D France immatriculé au RSAC de NANTERRE sous le numéro 911111011, titulaire de la carte de démarchage immobilier pour le compte de la société I@D France SAS.
À proximité
Recherche des commodités à proximité...
Détails de l'annonce
Localisation
Ville
Courbevoie
Pays
FR
Diagnostics / Énergie
Diagnostic DPE
135
Diagnostic GES
5
Surfaces / Pièces / Composition
Nombre d’étages
4
Étage
3
Chauffage et diagnostics
Diagnostic de performance énergétique (DPE)
a
b
c
d
e
f
g
Indice d'émission de gaz à effet de serre (GES)
a
b
c
d
e
f
g
