Type
Bien immobilierTarif
137 000 €Chambres
1Salles de bain
0Vente Appartement 2 pièces
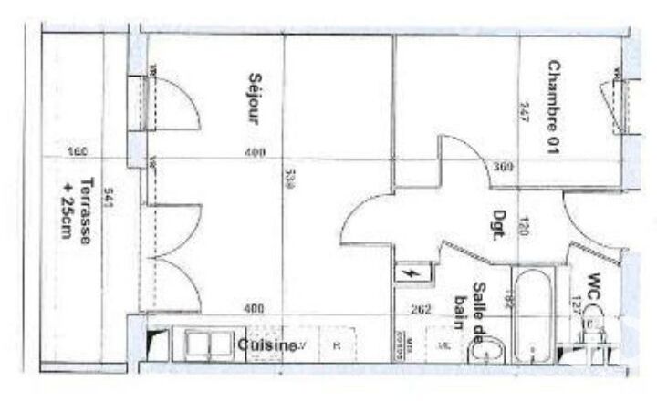
Iad France - Franck Viallard vous propose : SPÉCIAL INVESTISSEUR – F2 RÉCENT – FORTE DEMANDE LOCATIVE Opportunité idéale pour un investissement sécurisé, rentable et sans travaux. Situé au sein d’une copropriété récente de 2021, ce F2 de 40 m², parfaitement agencé sans perte d’espace, répond pleinement aux attentes du marché locatif actuel. Composition du bien : Entrée fonctionnelle, Séjour lumineux avec cuisine ouvert, Chambre séparée, Salle de bains, WC indépendant. Terrasse de 7 m² Place de parking couverte en extérieur Emplacement à forte attractivité locative : Tram T12, Bus Tzen 4, RER D à proximité immédiate Accès rapide aux bassins d’emploi et axes stratégiques Commodités actuelles et futures à deux pas Implanté dans un écoquartier en plein développement, le secteur bénéficie d’une valorisation progressive avec l’arrivée de nouveaux commerces et infrastructures. Un levier fort pour la pérennité de la demande locative et la revalorisation du bien. Atouts investisseurs : Aucune rénovation à prévoir, Charges maîtrisées (résidence récente), Exposition plein sud = forte attractivité locataire Terrasse + parking : critères décisifs à la location Idéal location nue ou meublée Produit rare, prêt à louer immédiatement. Contactez-moi pour étudier ensemble la rentabilité, la stratégie locative et organiser une visite. La presente annonce immobiliere vise 2 lots situés dans une copropriété de 47 lots au total et ne faisant l'objet d'aucune procédure en cours citée à l'article L. 721-1 du code de la construction et de l'habitation. Montant moyen mensuel de charges déclaré par le vendeur : 147.33€ par mois (soit 1767.96 € annuel). Honoraires d'agence à la charge du vendeur. Information d'affichage énergétique sur ce bien : classe ENERGIE C indice 125 et classe CLIMAT B indice 7. Les informations sur les risques auxquels ce bien est exposé, y compris l'obligation légale de débroussaillement, sont disponibles sur le site Géorisques : http://www.georisques.gouv.fr. La présente annonce immobilière a été rédigée sous la responsabilité éditoriale de M Franck Viallard mandataire indépendant en immobilier (sans détention de fonds), agent commercial de la SAS I@D France immatriculé au RSAC de EVRY sous le numéro 790441471, titulaire de la carte de démarchage immobilier pour le compte de la société I@D France SAS.
À proximité
Recherche des commodités à proximité...
Détails de l'annonce
Localisation
Ville
Grigny
Pays
FR
Diagnostics / Énergie
Diagnostic DPE
125
Diagnostic GES
7
Surfaces / Pièces / Composition
Nombre d’étages
3
Étage
3
Chauffage et diagnostics
Diagnostic de performance énergétique (DPE)
a
b
c
d
e
f
g
Indice d'émission de gaz à effet de serre (GES)
a
b
c
d
e
f
g
