Type
Bien immobilierTarif
2 199 000 €Chambres
5Salles de bain
2CHALET 7 PIECES
Chalet 6 chambres - Vue Mont-Blanc et Rochebrune - Megève
Sur les hauteurs ensoleillées de Megève, dans un environnement champêtre exceptionnel, magnifique chalet de 2008 offrant une vue imprenable sur les massifs, dont le Mont-Blanc et Rochebrune.
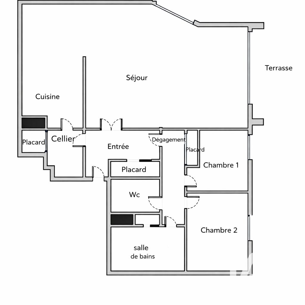
Edifié sur un terrain d'environ 1 200 m² en limite de zone agricole, il développe 292 m² au total (dont 176 m² habitables) répartis sur 3 niveaux :
- Appartement T3 indépendant en rez-de-jardin avec terrasse, 2 chambres, 2 salles d'eau, cuisine équipée
- Niveau principal : séjour lumineux avec balcon sud et terrasse ouest, cuisine indépendante, suite avec dressing et salle d'eau, garage double
- à l'étage : suite parentale avec salle de bain et dressing, mezzanine/chambre, bureau et chambre supplémentaire.
Buanderie, cave, atelier. Expositions sud et ouest. Secteur calme et ensoleillé toute l'année.
Chalet familial idéal pour vivre à Megève été comme hiver !
Les informations sur les risques auxquels ce bien est exposé sont disponibles sur le site Géorisques : www.georisques.gouv.fr
Sur les hauteurs ensoleillées de Megève, dans un environnement champêtre exceptionnel, magnifique chalet de 2008 offrant une vue imprenable sur les massifs, dont le Mont-Blanc et Rochebrune.
Edifié sur un terrain d'environ 1 200 m² en limite de zone agricole, il développe 292 m² au total (dont 176 m² habitables) répartis sur 3 niveaux :
- Appartement T3 indépendant en rez-de-jardin avec terrasse, 2 chambres, 2 salles d'eau, cuisine équipée
- Niveau principal : séjour lumineux avec balcon sud et terrasse ouest, cuisine indépendante, suite avec dressing et salle d'eau, garage double
- à l'étage : suite parentale avec salle de bain et dressing, mezzanine/chambre, bureau et chambre supplémentaire.
Buanderie, cave, atelier. Expositions sud et ouest. Secteur calme et ensoleillé toute l'année.
Chalet familial idéal pour vivre à Megève été comme hiver !
Les informations sur les risques auxquels ce bien est exposé sont disponibles sur le site Géorisques : www.georisques.gouv.fr
À proximité
Recherche des commodités à proximité...
Détails de l'annonce
Localisation
Ville
Megeve
Pays
France
Caractéristiques / Équipements
Terrasse
Oui
Diagnostics / Énergie
Diagnostic DPE
D
Diagnostic GES
B
Finances / Mandat / Références
Honoraires vendeur
€
Numéro de mandat
3333
Type de mandat
02/02/2026
Chauffage et diagnostics
Diagnostic de performance énergétique (DPE)
a
b
c
d
e
f
g
Indice d'émission de gaz à effet de serre (GES)
a
b
c
d
e
f
g
