Type
Bien immobilierTarif
139 000 €Chambres
0Salles de bain
0Vente Terrain à bâtir 314 m²
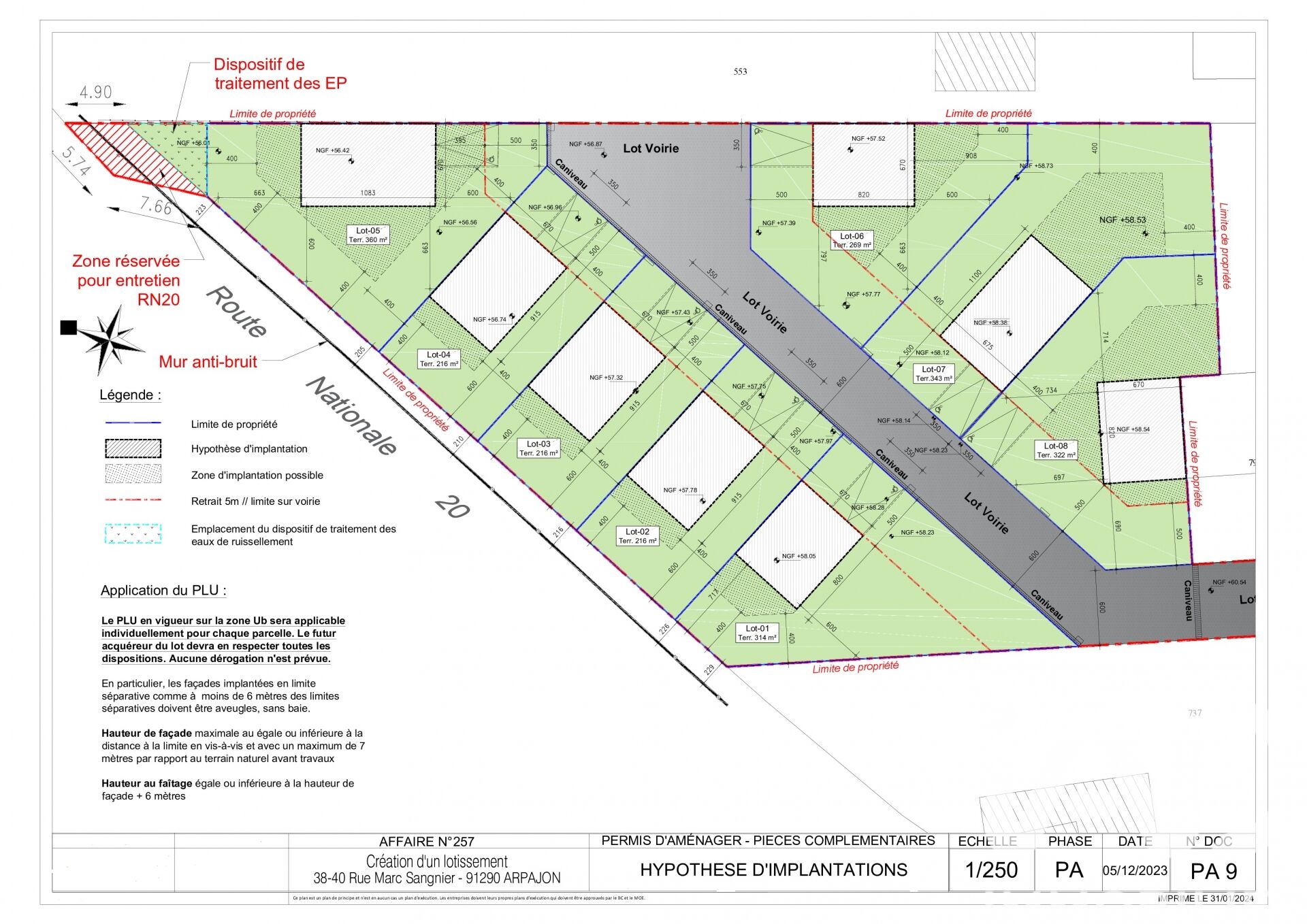
Iad France - Stéphane Jacquet-Fontaine vous propose : À Arpajon, rue Marc Sangnier, à deux pas de la gare RER C, terrain à bâtir, lot n°1, vendu viabilisé de 314 m² environ situé en zone UB du PLU, R + 1+C max, emprise au sol max de 40%. Accès N20. Commerces, Ecoles : maternelle, primaire, collège, lycée. Honoraires à la charge du vendeur. Honoraires d'agence à la charge du vendeur. Bien non soumis au DPE. Les informations sur les risques auxquels ce bien est exposé, y compris l'obligation légale de débroussaillement, sont disponibles sur le site Géorisques : http://www.georisques.gouv.fr. La présente annonce immobilière a été rédigée sous la responsabilité éditoriale de M Stéphane Jacquet-Fontaine mandataire indépendant en immobilier (sans détention de fonds), agent commercial de la SAS I@D France immatriculé au RSAC de EVRY sous le numéro 753935089, titulaire de la carte de démarchage immobilier pour le compte de la société I@D France SAS.
À proximité
Recherche des commodités à proximité...
Détails de l'annonce
Localisation
Ville
Arpajon
Pays
FR
Surfaces / Pièces / Composition
Nombre d’étages
Chauffage et diagnostics
Diagnostic de performance énergétique (DPE)
a
b
c
d
e
f
g
Indice d'émission de gaz à effet de serre (GES)
a
b
c
d
e
f
g
