Trouver...

Language: FR

Devise: EUR

Vente Maison/villa 4 pièces

Publié le 24 January 2026
Type
Bien immobilier
Tarif
354 000 €
Chambres
3
Salles de bain
0

Vente Maison/villa 4 pièces

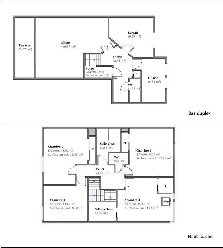
Iad France - Delphine Garcia vous propose : Charmante maison de ville, soignée jusque dans les moindre détails ! Située dans un quartier calme et résidentiel de Gujan-Mestras, cette charmante maison de 84 m² a été entièrement rénovée pour offrir un cadre de vie exceptionnel à ses occupants. Avec son jardin, son garage et sa piscine, elle saura vous séduire par ses nombreux atouts. La maison se compose en rez-de-chaussée chaussée d’une belle pièce de vie traversante avec une cuisine ouverte et d’un accès au garage. À l’étage vous trouverez 3 belles chambres, chacune offrant un espace confortable ainsi qu’une salle de bain. L'espace extérieur de la maison est un véritable havre de paix. La terrasse, exposée au sud-ouest, est parfaite pour profiter des journées ensoleillées. Chaque espace a été aménagé pour optimiser le confort. Cette maison est une véritable opportunité pour ceux qui recherchent un cadre de vie paisible et confortable, à proximité des commodités et des espaces naturels de Gujan-Mestras. Ne manquez pas l'occasion de visiter ce bien d'exception ! Honoraires d'agence à la charge du vendeur. Information d'affichage énergétique sur ce bien : classe ENERGIE D indice 168 et classe CLIMAT D indice 33. Les informations sur les risques auxquels ce bien est exposé, y compris l'obligation légale de débroussaillement, sont disponibles sur le site Géorisques : http://www.georisques.gouv.fr. La présente annonce immobilière a été rédigée sous la responsabilité éditoriale de Mme Delphine Garcia mandataire indépendant en immobilier (sans détention de fonds), agent commercial de la SAS I@D France immatriculé au RSAC de BORDEAUX sous le numéro 984376533, titulaire de la carte de démarchage immobilier pour le compte de la société I@D France SAS.
Cette semaine Cette annonce est récente

À proximité

Recherche des commodités à proximité...

Détails de l'annonce

Localisation

Ville
Gujan-Mestras
Pays
FR

Diagnostics / Énergie

Diagnostic DPE
168
Diagnostic GES
33

Chauffage et diagnostics

Diagnostic de performance énergétique (DPE)
a
b
c
d
e
f
g
Indice d'émission de gaz à effet de serre (GES)
a
b
c
d
e
f
g
Rappelez-moi