Type
Bien immobilierTarif
569 000 €Chambres
3Salles de bain
0Vente Appartement 4 pièces
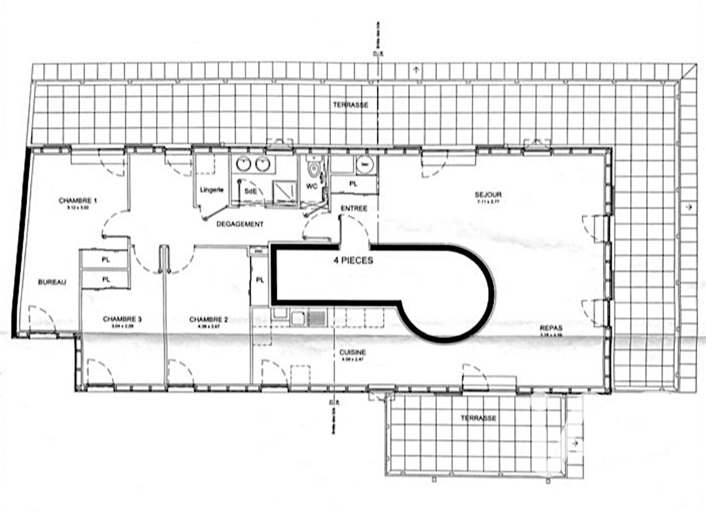
Iad France - Ronan BOISTEL vous propose : NOUVEAUTÉ / NANTES - PROCÉ - COUP DE CŒUR pour ce superbe appartement en ROOF TOP (seul au dernier étage) et ses DEUX TERRASSES ! Face au parc de Procé, cette résidence de 2008 offre un haut STANDING à deux pas du centre ville. Il se compose d'un entrée ouverte sur le GRAND séjour TRIPLE EXPOSITION et à la cuisine AMÉNAGÉE ET ÉQUIPÉE de qualité. L'arrondi central donne une sensation de DOUCEUR, renforcée par la lumière TRAVERSANTE, le PARQUET et la vue sur les ARBRES. Depuis l'espace de jour, vous avez accès à la superbe TERRASSE de 60 m² donnant sur le parc, et la seconde terrasse de 16 m² donnant au SUD et au calme. L'espace nuit se compose d'une salle d'eau, d'une buanderie, de trois chambres, et d'un espace détente ou bureau. AUCUN TRAVAUX À PRÉVOIR Un double garage boxé complète le bien. UN BIEN RARE ET D'EXCEPTION ! COUP DE CŒUR ASSURÉ ! La presente annonce immobiliere vise 3 lots situés dans une copropriété de 43 lots au total et ne faisant l'objet d'aucune procédure en cours citée à l'article L. 721-1 du code de la construction et de l'habitation. Montant moyen mensuel de charges déclaré par le vendeur : 191.33€ par mois (soit 2296 € annuel). Honoraires d'agence à la charge du vendeur. Information d'affichage énergétique sur ce bien : classe ENERGIE D indice 193 et classe CLIMAT B indice 6. Les informations sur les risques auxquels ce bien est exposé, y compris l'obligation légale de débroussaillement, sont disponibles sur le site Géorisques : http://www.georisques.gouv.fr. La présente annonce immobilière a été rédigée sous la responsabilité éditoriale de M Ronan BOISTEL mandataire indépendant en immobilier (sans détention de fonds), agent commercial de la SAS I@D France immatriculé au RSAC de NANTES sous le numéro 848589982, titulaire de la carte de démarchage immobilier pour le compte de la société I@D France SAS.
Ce mois
Cette annonce est récente
À proximité
Recherche des commodités à proximité...
Détails de l'annonce
Localisation
Ville
Nantes
Pays
FR
Diagnostics / Énergie
Diagnostic DPE
193
Diagnostic GES
6
Surfaces / Pièces / Composition
Nombre d’étages
6
Étage
6
Chauffage et diagnostics
Diagnostic de performance énergétique (DPE)
a
b
c
d
e
f
g
Indice d'émission de gaz à effet de serre (GES)
a
b
c
d
e
f
g
