Type
Bien immobilierTarif
320 000 €Chambres
4Salles de bain
0Vente Maison de village 6 pièces
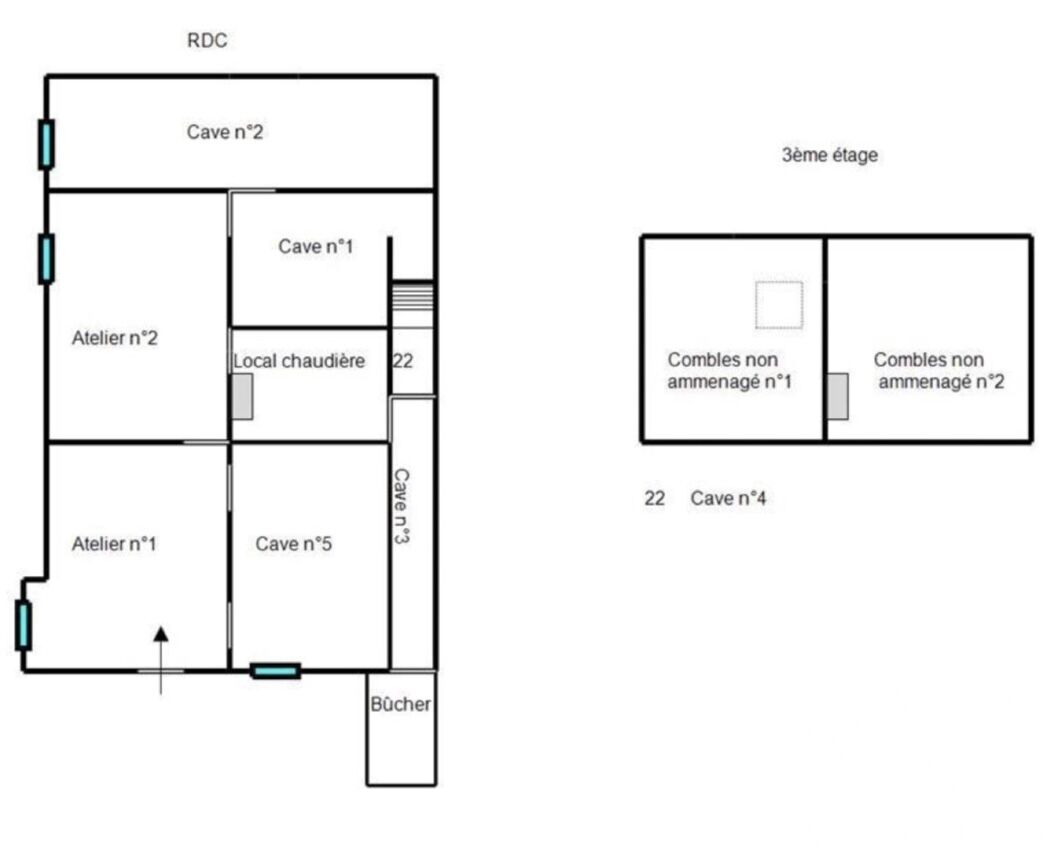
Iad France - Anthony Frichet vous propose : Maison de 186 m² avec Terrasse, Jardin, Parkings, carport et sous-sol aménageable (100 m²) à Ravilloles Idéal famille nombreuse, gîte ou investisseurs, pour 1 à 2 logements supplémentaires de plain pied Description des Pièces : Située dans le charmant village de Ravilloles, entre lacs et montagnes, cette maison de village sur 3 niveaux offre un cadre de vie exceptionnel. L'accès du logement principal se fait par la grande terrasse plein sud, au premier étage, salle à manger et salon avec cheminée de près de 60 m², une cuisine équipée indépendante, une chambre, salle de bain avec douche à l'italienne, WC et dressing, au dernier étage, un grand pallier ou espace de bureau, 3 chambres, une 2ème salle d'eau avec douche et WC. En rez-de jardin, un espace d'environ 100 m² à imaginer, actuellement atelier, chaufferie et pièces de rangement, demain un ou plusieurs appartement avec accès indépendant pour logements saisonniers, logement des ainés / jeunes de la maison ou investissement locatifs. Avantages : Cette maison de village bénéficie d'une terrasse ensoleillée pour profiter de moments de détente en plein air. Vous disposerez également d'un parking privé pouvant accueillir jusqu'à 4 véhicules, offrant ainsi praticité et confort au quotidien. Équipements et Caractéristiques : - Confort assuré grâce à la fibre optique, - Très bonne isolation et chauffage individuel avec distribution par pompe à chaleur, cheminée avec insert, chauffe-eau thermodynamique, panneaux solaires de 2024 (auto-consommation et surplus d'environ 800 à 1000e / an). - Exposition plein sud pour une luminosité naturelle optimale tout au long de la journée. - Etat général de la maison en bon état. Points d’Intérêt à Proximité : - Accès rapide aux aéroports internationaux de Genève et Lyon ainsi qu'à la gare TGV, à seulement 1h40. - Besançon et sa gare TGV à 2h de route. - Détente assurée au Lac de Vouglans à seulement 25min. - Amateurs de sports d'hiver, les pistes de ski se trouvent à 30min. - La frontière Suisse est accessible en 45min pour des escapades variées. Une opportunité rare à ne pas manquer pour les amoureux de la nature et du calme. Contactez-nous dès maintenant pour organiser une visite et découvrir ce havre de paix à Ravilloles. Honoraires d'agence à la charge du vendeur. Information d'affichage énergétique sur ce bien : classe ENERGIE B indice 105 et classe CLIMAT A indice 3. Les informations sur les risques auxquels ce bien est exposé, y compris l'obligation légale de débroussaillement, sont disponibles sur le site Géorisques : http://www.georisques.gouv.fr. La présente annonce immobilière a été rédigée sous la responsabilité éditoriale de M Anthony Frichet mandataire indépendant en immobilier (sans détention de fonds), agent commercial de la SAS I@D France immatriculé au RSAC de Lons le saunier sous le numéro 504241811, titulaire de la carte de démarchage immobilier pour le compte de la société I@D France SAS.
Cette semaine
Cette annonce est récente
À proximité
Recherche des commodités à proximité...
Détails de l'annonce
Localisation
Ville
Ravilloles
Pays
FR
Diagnostics / Énergie
Diagnostic DPE
105
Diagnostic GES
3
Surfaces / Pièces / Composition
Nombre d’étages
3
Chauffage et diagnostics
Diagnostic de performance énergétique (DPE)
a
b
c
d
e
f
g
Indice d'émission de gaz à effet de serre (GES)
a
b
c
d
e
f
g
