Type
Bien immobilierTarif
740 000 €Chambres
3Salles de bain
0Vente Appartement 4 pièces
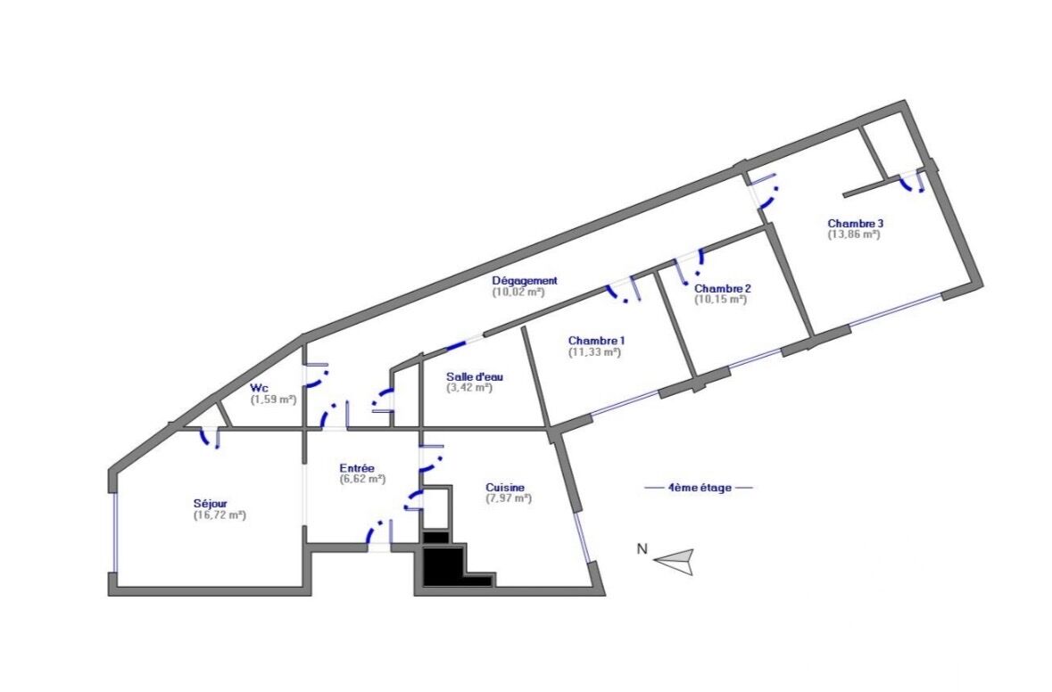
Iad France - Léa Mallet vous propose : * NOUVEAUTÉ - REUILLY DIDEROT * Idéalement situé au pied du métro, découvrez ce bel appartement 4 pièces, dans le quartier recherché de Reuilly-Diderot. Situé au 4ᵉ étage avec ascenseur, cet appartement spacieux se compose d’une entrée spacieuse, d’un séjour de 17 m², d’une cuisine séparée aménagée et équipée, de 3 chambres lumineuses, d’une salle d’eau, de WC séparés ainsi que d’un espace buanderie. L’appartement est en bon état général et se trouve dans une copropriété bien entretenue, avec gardien et chauffage collectif. La résidence est sécurisée et fermée, garantissant calme et tranquillité. + Emplacement privilégié : •Métro Reuilly – Diderot à 150 m •Gare de Lyon à 1 km •Rue du Faubourg-Saint-Antoine à 200m •Place de la Nation à 700 m •Coulée verte René-Dumont à 900m Une belle opportunité dans un quartier dynamique et très recherché. Contactez-moi dès maintenant pour organiser une visite ! Votre conseillère disponible 7j / 7 La presente annonce immobiliere vise 1 lot situé dans une copropriété de 50 lots au total et ne faisant l'objet d'aucune procédure en cours citée à l'article L. 721-1 du code de la construction et de l'habitation. Montant moyen mensuel de charges déclaré par le vendeur : 300€ par mois (soit 3600 € annuel). Honoraires d'agence à la charge du vendeur. Information d'affichage énergétique sur ce bien : classe ENERGIE F indice 319 et classe CLIMAT F indice 99. Les informations sur les risques auxquels ce bien est exposé, y compris l'obligation légale de débroussaillement, sont disponibles sur le site Géorisques : http://www.georisques.gouv.fr. La présente annonce immobilière a été rédigée sous la responsabilité éditoriale de Mme Léa Mallet mandataire indépendant en immobilier (sans détention de fonds), agent commercial de la SAS I@D France immatriculé au RSAC de Créteil sous le numéro 919166595, titulaire de la carte de démarchage immobilier pour le compte de la société I@D France SAS.
Ce mois
Cette annonce est récente
À proximité
Recherche des commodités à proximité...
Détails de l'annonce
Localisation
Ville
Paris
Pays
FR
Diagnostics / Énergie
Diagnostic DPE
319
Diagnostic GES
99
Surfaces / Pièces / Composition
Nombre d’étages
8
Étage
4
Chauffage et diagnostics
Diagnostic de performance énergétique (DPE)
a
b
c
d
e
f
g
Indice d'émission de gaz à effet de serre (GES)
a
b
c
d
e
f
g
