Trouver...

Language: FR

Devise: EUR

Vente Appartement 4 pièces

Publié le 5 February 2026
Type
Bien immobilier
Tarif
320 000 €
Chambres
0
Salles de bain
0

Vente Appartement 4 pièces

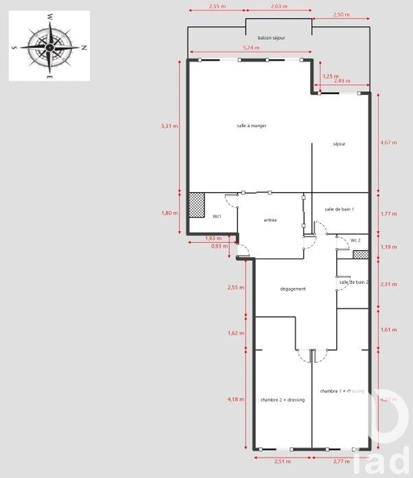
Iad France - Yohann Chevallier vous propose : Exclusivité - Appartement de 100 m²- Rue Marengo à 2 minutes à pied de la fameuse place Castellane Vous rêvez de créer votre cocon sur mesure dans un endroit privilégié à Marseille ? Cet appartement de 100 m², situé dans un immeuble datant de 1976, offre un potentiel incroyable pour réaliser votre projet de vie idéal. Idéalement situé dans un quartier prisé de Marseille, cet appartement au premier étage d'un immeuble de 10 étages vous offre la possibilité de personnaliser chaque espace à votre goût pour en faire un lieu unique qui vous ressemble. Avec ses 4 pièces et sa surface généreuse, cet appartement peut être transformé en un véritable havre de paix. Vous aurez la liberté de concevoir l'espace selon vos besoins, que ce soit en aménageant des chambres, des bureaux, une cuisine moderne ou un salon lumineux avec son joli balcon. La résidence offre de nombreux équipements tels que la fibre optique, la climatisation, une ventilation mécanique, un système de chauffage central et des radiateurs pour votre confort au quotidien. De plus, vous bénéficierez de la sécurité avec un digicode, un interphone, une porte blindée et un système anti intrusion à l'entrée de l'immeuble. Bien que des travaux de rénovation soient nécessaires pour créer une cuisine dans ces espaces généreux, cet appartement est une réelle opportunité d'investissement dans l'un des quartiers les plus demandés de Marseille. Imaginez la transformation possible et laissez libre cours à votre créativité pour en faire un espace unique et élégant. Ne manquez pas cette occasion unique de devenir propriétaire d'un appartement spacieux à rénover selon vos envies. Contactez-moi dès aujourd'hui pour visiter ce bien exceptionnel. La presente annonce immobiliere vise 2 lots situés dans une copropriété de 179 lots au total et ne faisant l'objet d'aucune procédure en cours citée à l'article L. 721-1 du code de la construction et de l'habitation. Montant moyen mensuel de charges déclaré par le vendeur : 300€ par mois (soit 3600 € annuel). Honoraires d'agence à la charge du vendeur. Information d'affichage énergétique sur ce bien : classe ENERGIE C indice 115 et classe CLIMAT C indice 15. Les informations sur les risques auxquels ce bien est exposé, y compris l'obligation légale de débroussaillement, sont disponibles sur le site Géorisques : http://www.georisques.gouv.fr. La présente annonce immobilière a été rédigée sous la responsabilité éditoriale de M Yohann Chevallier mandataire indépendant en immobilier (sans détention de fonds), agent commercial de la SAS I@D France immatriculé au RSAC de Marseille sous le numéro 841540412, titulaire de la carte de démarchage immobilier pour le compte de la société I@D France SAS.

À proximité

Recherche des commodités à proximité...

Détails de l'annonce

Localisation

Ville
Marseille
Pays
FR

Diagnostics / Énergie

Diagnostic DPE
115
Diagnostic GES
15

Surfaces / Pièces / Composition

Nombre d’étages
10

Chauffage et diagnostics

Diagnostic de performance énergétique (DPE)
a
b
c
d
e
f
g
Indice d'émission de gaz à effet de serre (GES)
a
b
c
d
e
f
g
Rappelez-moi