Type
Bien immobilierTarif
220 000 €Chambres
4Salles de bain
0Vente Maison d'architecte 8 pièces
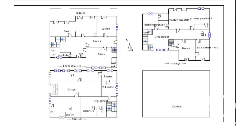
Iad France - Philippe Lemasson vous propose : Maison d’architecte – 250 m² – Jardin 923 m² – Mazamet Rare sur le secteur. Située à proximité immédiate du centre-ville de Mazamet et de toutes les commodités, cette maison d’architecte des années 50 développe environ 250 m² habitables sur 2 niveaux, 115 m² en rez de jardin. Elle se compose de 8 pièces, dont 4 chambres, un bureau, 2 salles d’eau et une cuisine indépendante. Les volumes généreux et la luminosité offrent un cadre de vie confortable et le rez de jardin de nombreuses possibilités d’aménagement. À l’extérieur, vous profiterez d’un grand jardin arboré de 923 m², d’une terrasse idéale pour les beaux jours et d’un garage double. Travaux de rénovation à prévoir, parfait pour un projet de valorisation ou une résidence familiale de caractère. Fibre optique, assainissement collectif, chauffage individuel. Emplacement recherché : commerces, écoles, transports, complexes sportifs et parc de la Molière accessibles rapidement.
Ce mois
Cette annonce est récente
À proximité
Recherche des commodités à proximité...
Détails de l'annonce
Localisation
Ville
Mazamet
Pays
FR
Diagnostics / Énergie
Diagnostic DPE
248
Diagnostic GES
78
Surfaces / Pièces / Composition
Nombre d’étages
3
Chauffage et diagnostics
Diagnostic de performance énergétique (DPE)
a
b
c
d
e
f
g
Indice d'émission de gaz à effet de serre (GES)
a
b
c
d
e
f
g
