Type
Bien immobilierTarif
999 000 €Chambres
4Salles de bain
0Vente Appartement 5 pièces
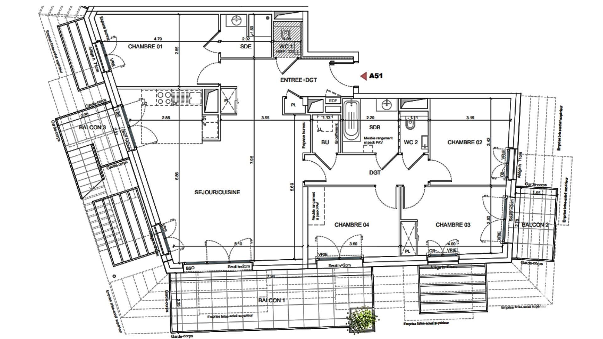
Iad France - Sarah Rozière (06 99 86 19 42) vous propose : Appartement 5 pièces avec terrasse en rooftop à Annecy. Au cOEur du Quartier des Hirondelles, adresse contemporaine et verte signée par Nicolas Laisné Architectes et Groupe 6, la résidence Hypnose s’inscrit dans une démarche innovante, mêlant design et performance énergétique. Située avenue des Hirondelles, à quelques minutes du centre d’Annecy, cette résidence conjugue sérénité résidentielle et proximité urbaine. Un appartement intimiste : Au 5 ème étage, découvrez un 5 pièces de 112 m² environ habitables, prolongé par un balcon de 18 m² environ et une terrasse en rooftop de 57 m² environ. - Séjour / cuisine de 40 m² environ, ouvert sur l’extérieur. - Trois belles chambres et une suite parentale avec salle d’eau. - Une salle de bains et WC séparés. - Annexes : double box en sous-sol et cave. Belles prestations : - Architecture contemporaine et soignée, intégrée dans un cadre verdoyant au cOEur du Quartier des Hirondelles. - Menuiseries bois-aluminium avec double vitrage isolant. - Volets roulants électriques et brise-soleil orientables. - Chauffage et eau chaude assurés par une chaudière collective à biomasse (pellets), - Certification NF Habitat, gage de qualité et de durabilité. - Résidence sécurisée avec visiophone, digicode et accès Vigik®. Une adresse recherchée à Annecy : - Centre historique et gare à 10 minutes à pied. - Lac d’Annecy en 15 minutes. - Proximité immédiate des commerces, écoles et services. - Un quartier innovant, pensé pour conjuguer biodiversité, mobilité douce et convivialité. Cet appartement conjugue modernité, confort et cadre privilégié, au cOEur d’un projet emblématique d’Annecy. Contactez-moi pour plus d’informations ou pour un accompagnement sur mesure. Honoraires d’agence à la charge du vendeur. Bien non soumis au DPE. Les informations sur les risques auxquels ce bien est exposé sont disponibles sur le site Géorisques : www.georisques.gouv.fr. La présente annonce immobilière a été rédigée sous la responsabilité éditoriale de Mlle Sarah Rozière EI (ID 83696), mandataire indépendant en immobilier (sans détention de fonds), agent commercial de la SAS I@D France immatriculé au RSAC de Clermont-Ferrand sous le numéro 978616993, titulaire de la carte de démarchage immobilier pour le compte de la société I@D France SAS. Retrouvez tous nos biens sur notre site internet. www.iadfrance.fr.
À proximité
Recherche des commodités à proximité...
Détails de l'annonce
Localisation
Ville
Annecy
Pays
FR
Surfaces / Pièces / Composition
Nombre d’étages
5
Étage
5
Chauffage et diagnostics
Diagnostic de performance énergétique (DPE)
a
b
c
d
e
f
g
Indice d'émission de gaz à effet de serre (GES)
a
b
c
d
e
f
g
