Type
Bien immobilierTarif
2 450 000 €Chambres
2Salles de bain
0Vente Appartement 4 pièces
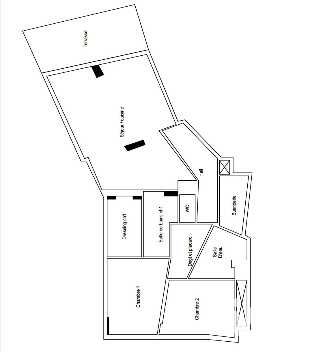
Iad France - Angéla Gest vous propose : La pointe Croisette. Lieu mythique. Un rare joyau ! Au calme, face aux plages et au port du Palm Beach, dans une résidence de standing avec jardin, gardien 24h / 24 et vidéosurveillance, ce splendide appartement traversant de 135 m², prolongé par une terrasse de 20 m² baignée de lumière, séduit par son espace, sa clarté, ses finitions haut de gamme. Un Hall d’entrée, une pièce de vie de 60 m² avec cuisine équipée premium, espace repas et salon ouvert sur la terrasse verdoyante et vue sur les palmiers, deux Suites complètes et raffinées, une lingerie, des toilette invités de toute beauté. Cave et parking en garage fermé. Un art de vivre méditerranéen incomparable. Double vitrage. Stores motorisés et centralisés. Climatisation et chauffage gainés. Tout inclus dans les charges sauf eau chaude. La presente annonce immobiliere vise 3 lots situés dans une copropriété de 100 lots au total et ne faisant l'objet d'aucune procédure en cours citée à l'article L. 721-1 du code de la construction et de l'habitation. Montant moyen mensuel de charges déclaré par le vendeur : 228.33€ par mois (soit 2740 € annuel). Honoraires d'agence à la charge de l'acquéreur. Prix honoraires inclus : 2450000 euros. Prix hors honoraires : 2334000 euros. Honoraires TTC à la charge de l'acquéreur (4,97% du prix du bien hors honoraires) : 116000 euros. Information d'affichage énergétique sur ce bien : classe ENERGIE D indice 180 et classe CLIMAT D indice 35. Les informations sur les risques auxquels ce bien est exposé, y compris l'obligation légale de débroussaillement, sont disponibles sur le site Géorisques : http://www.georisques.gouv.fr. La présente annonce immobilière a été rédigée sous la responsabilité éditoriale de Mme Angéla Gest mandataire indépendant en immobilier (sans détention de fonds), agent commercial de la SAS I@D France immatriculé au RSAC de CANNES sous le numéro 521823922, titulaire de la carte de démarchage immobilier pour le compte de la société I@D France SAS.
À proximité
Recherche des commodités à proximité...
Détails de l'annonce
Localisation
Ville
Cannes
Pays
FR
Diagnostics / Énergie
Diagnostic DPE
180
Diagnostic GES
35
Surfaces / Pièces / Composition
Nombre d’étages
8
Chauffage et diagnostics
Diagnostic de performance énergétique (DPE)
a
b
c
d
e
f
g
Indice d'émission de gaz à effet de serre (GES)
a
b
c
d
e
f
g
