Trouver...

Language: FR

Devise: EUR

Vente Maison/villa 4 pièces

Publié le 17 October 2025
Type
Bien immobilier
Tarif
369 400 €
Chambres
3
Salles de bain
0

Vente Maison/villa 4 pièces

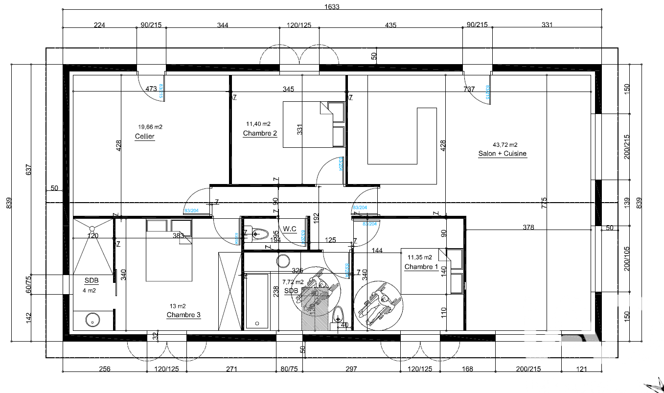
Iad France - Séverine Raimundo vous propose : Maison récente 118 m² – Centre-ville & proche Bassin À seulement 300 m des commerces et 15 min à pied du Bassin de baignade, découvrez cette maison contemporaine de 2018, alliant confort, modernité et luminosité. Belle pièce de vie de 44 m² avec cuisine ouverte, plancher chauffant par pompe à chaleur, 3 chambres dont une suite parentale, salle de bains et 2 WC. Le plus : un grand cellier de 20 m² avec accès direct à l’extérieur, offrant de nombreuses possibilités d’aménagement — cabinet, bureau ou pièce pour profession libérale. Jardin clos de 439 m², stationnement pour 3 véhicules, volets roulants électriques. Maison récente, prête à vivre, idéalement située proche du centre et du Bassin. À visiter sans tarder ! Honoraires d'agence à la charge du vendeur. Information d'affichage énergétique sur ce bien : classe ENERGIE A indice 68 et classe CLIMAT A indice 2. Les informations sur les risques auxquels ce bien est exposé, y compris l'obligation légale de débroussaillement, sont disponibles sur le site Géorisques : http://www.georisques.gouv.fr. La présente annonce immobilière a été rédigée sous la responsabilité éditoriale de Mme Séverine Raimundo mandataire indépendant en immobilier (sans détention de fonds), agent commercial de la SAS I@D France immatriculé au RSAC de Bordeaux sous le numéro 907634620, titulaire de la carte de démarchage immobilier pour le compte de la société I@D France SAS.

À proximité

Recherche des commodités à proximité...

Détails de l'annonce

Localisation

Ville
Audenge
Pays
FR

Diagnostics / Énergie

Diagnostic DPE
68
Diagnostic GES
2

Surfaces / Pièces / Composition

Nombre d’étages

Chauffage et diagnostics

Diagnostic de performance énergétique (DPE)
a
b
c
d
e
f
g
Indice d'émission de gaz à effet de serre (GES)
a
b
c
d
e
f
g
Rappelez-moi